PROYECTO CAÑUELAS

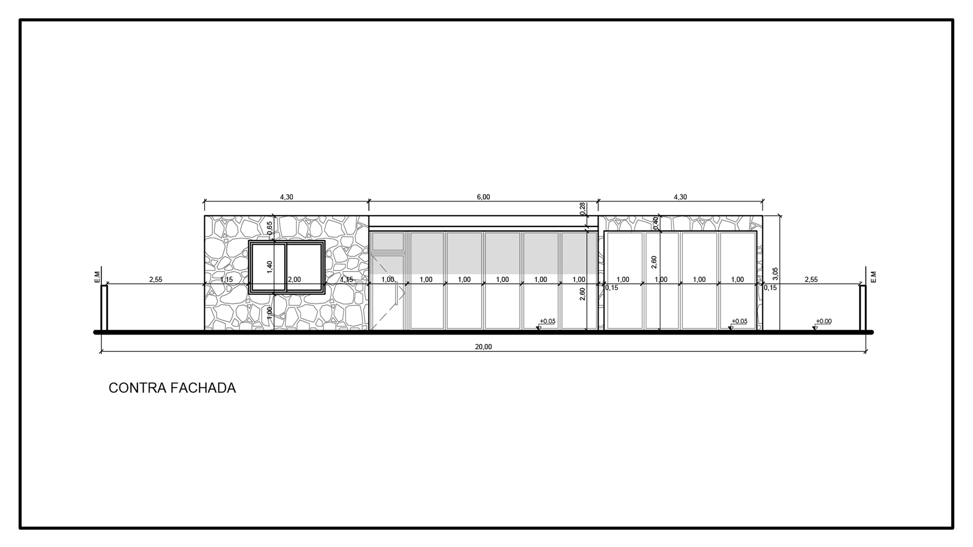
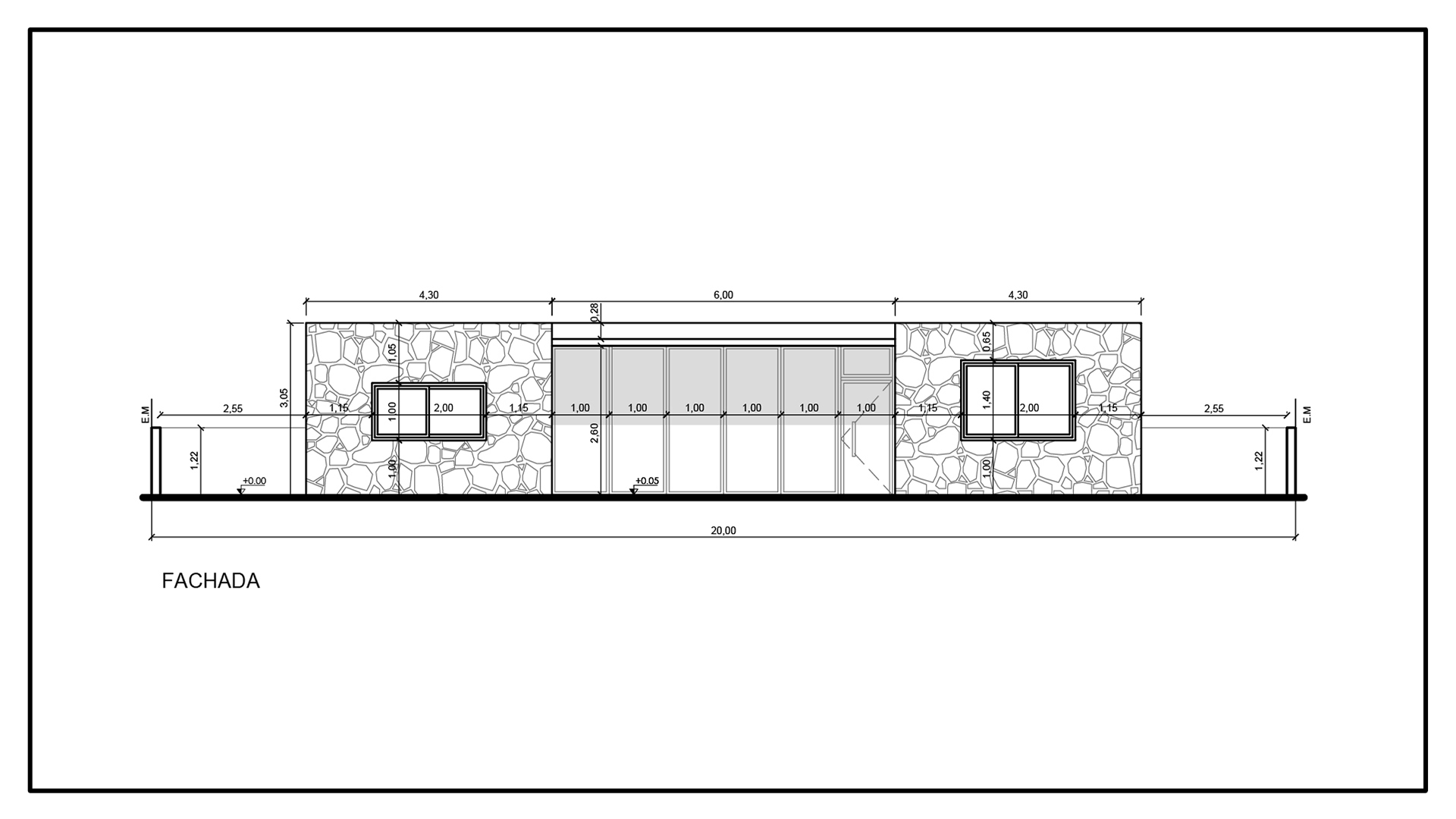
Desarrollo residencial compuesto por 18 viviendas prototipo distribuidas en el barrio Santa Anita, Cañuelas, concebido bajo un concepto de minimalismo cálido.
La propuesta combina líneas puras con materiales nobles como madera y piedra natural, priorizando la luz natural, la apertura y la integración con el entorno.
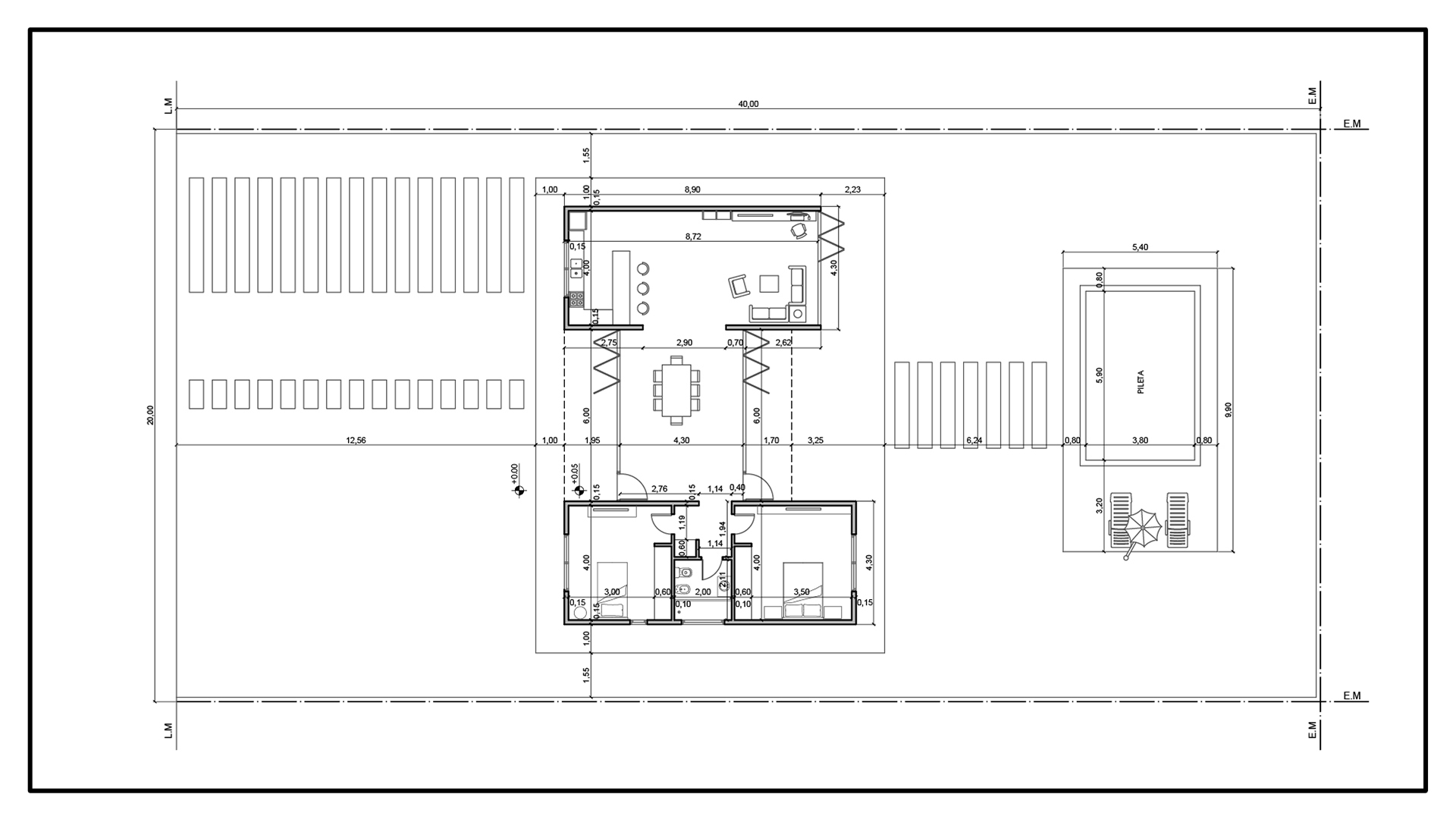
El conjunto incorpora un espacio público central con quincho comunitario y pileta, pensado como punto de encuentro y vida social para los vecinos.
Cada vivienda se organiza con cocina integrada al living y dos dormitorios en suite, ofreciendo funcionalidad, confort y una identidad arquitectónica uniforme y contemporánea.

Servicios

Proyectos • Dirección de Obra • Ejecución de Obra • Gestión de Compras

Proyecto
Proyecto Cañuelas
Locación:
Barrio Santa Anita, Cañuelas, Buenos Aires, Argentina.
Propuesta
Diseño Integral y Vivienda Unifamiliar
Tamaño
210 m²