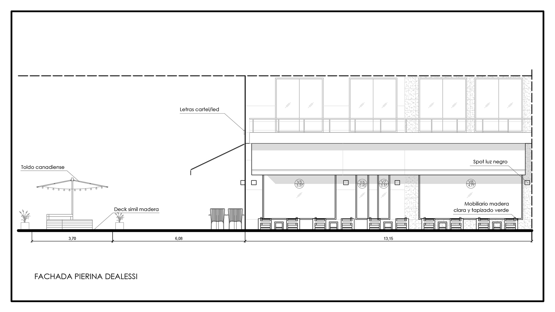
PATIO MADERO

Restaurante ubicado a orillas del río en Puerto Madero, donde el diseño minimalista se combina con materiales cálidos para crear un ambiente sofisticado y relajado, en diálogo directo con el entorno natural.
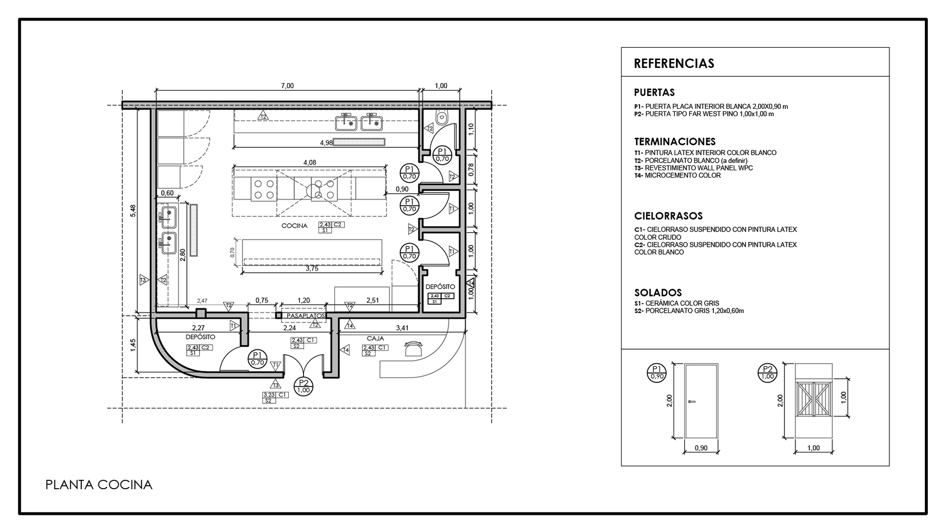
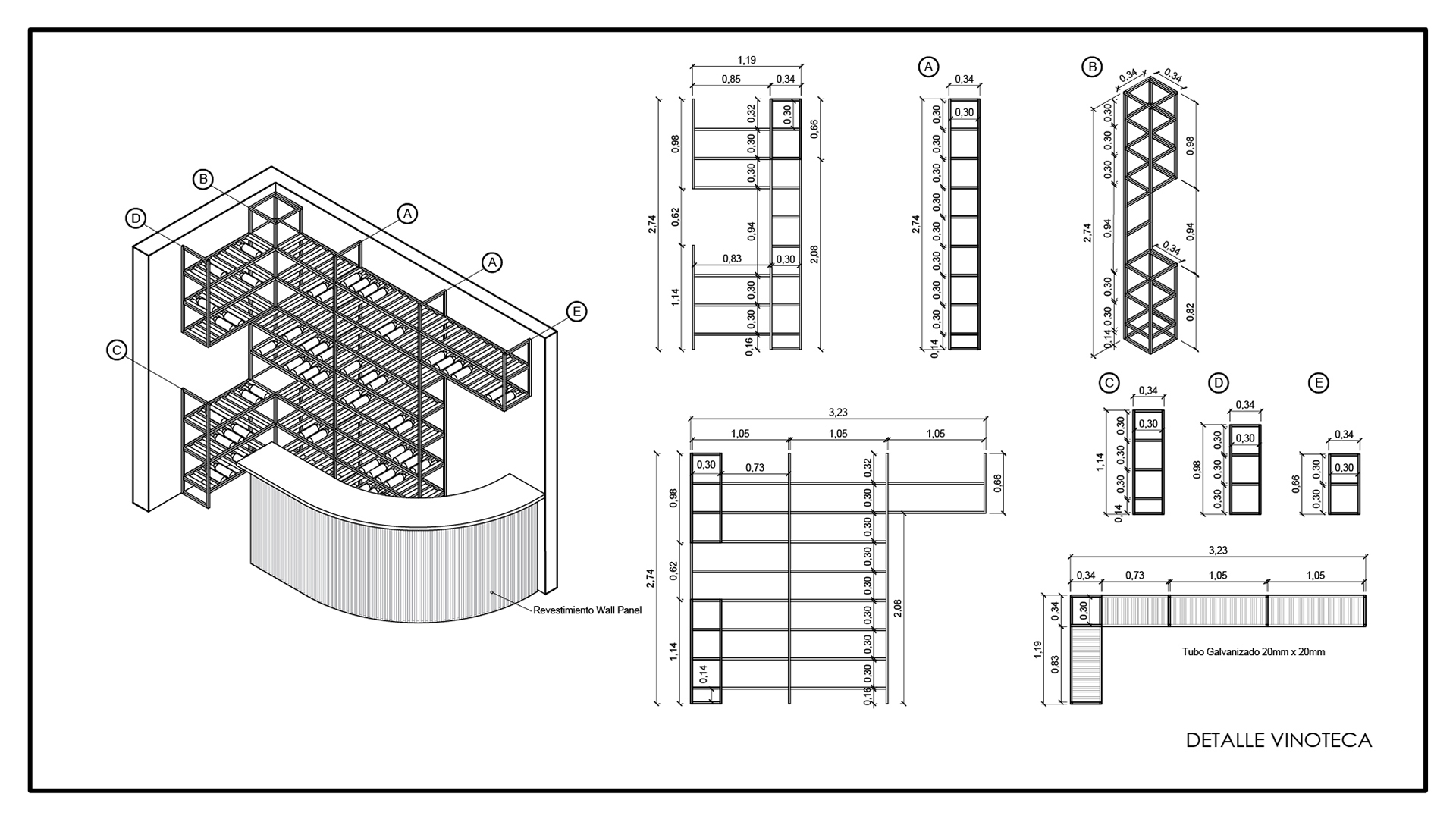
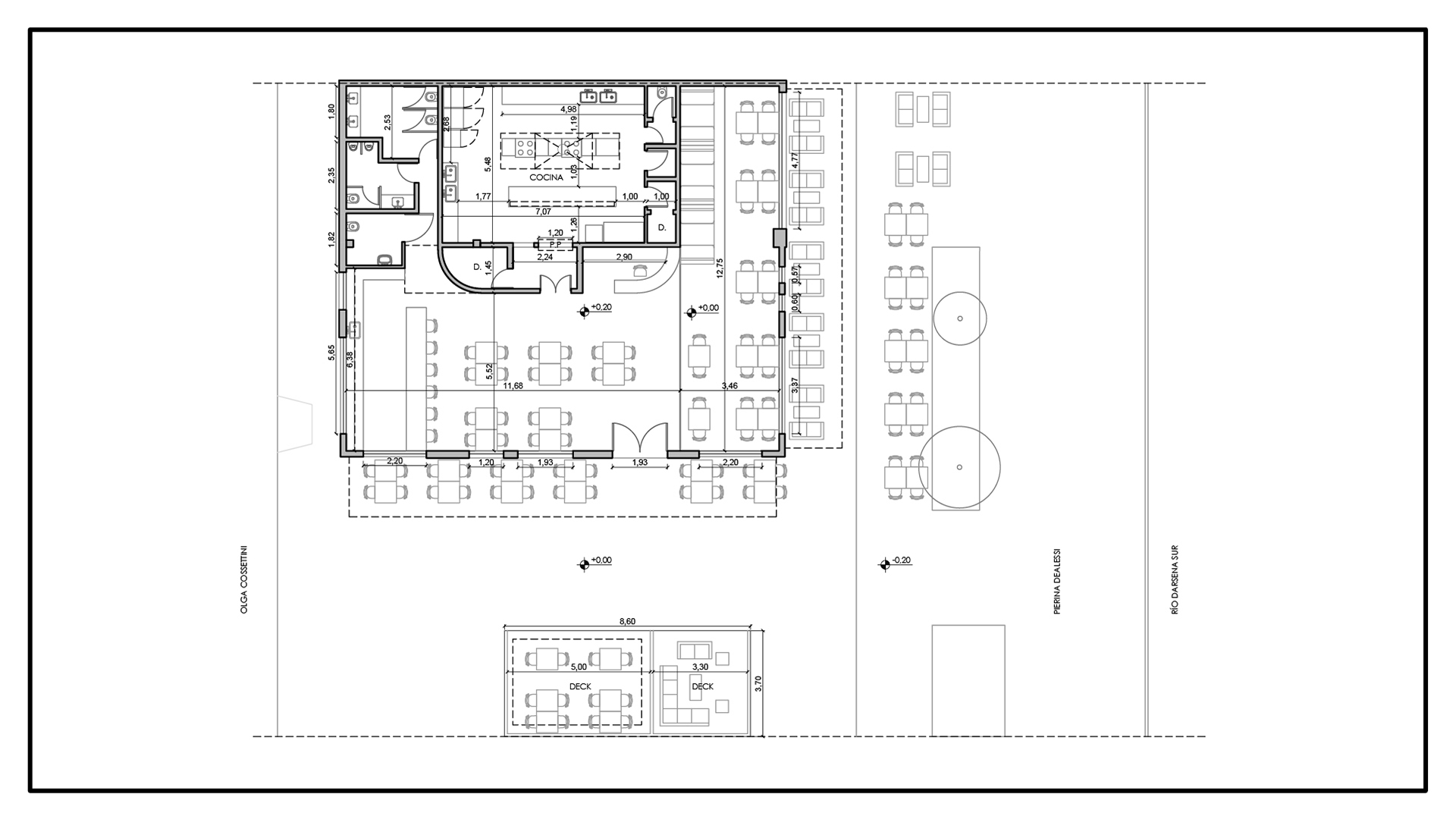
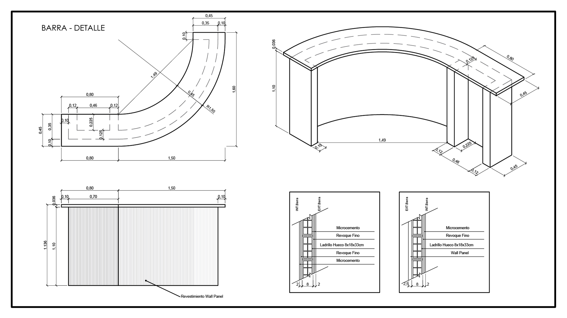
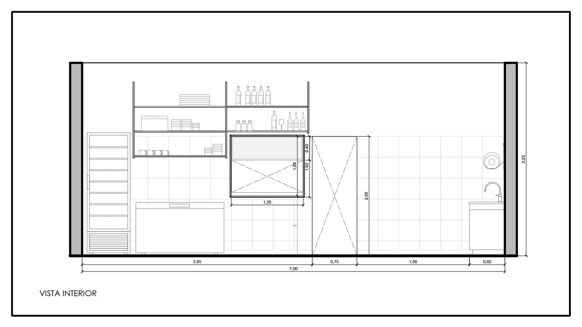
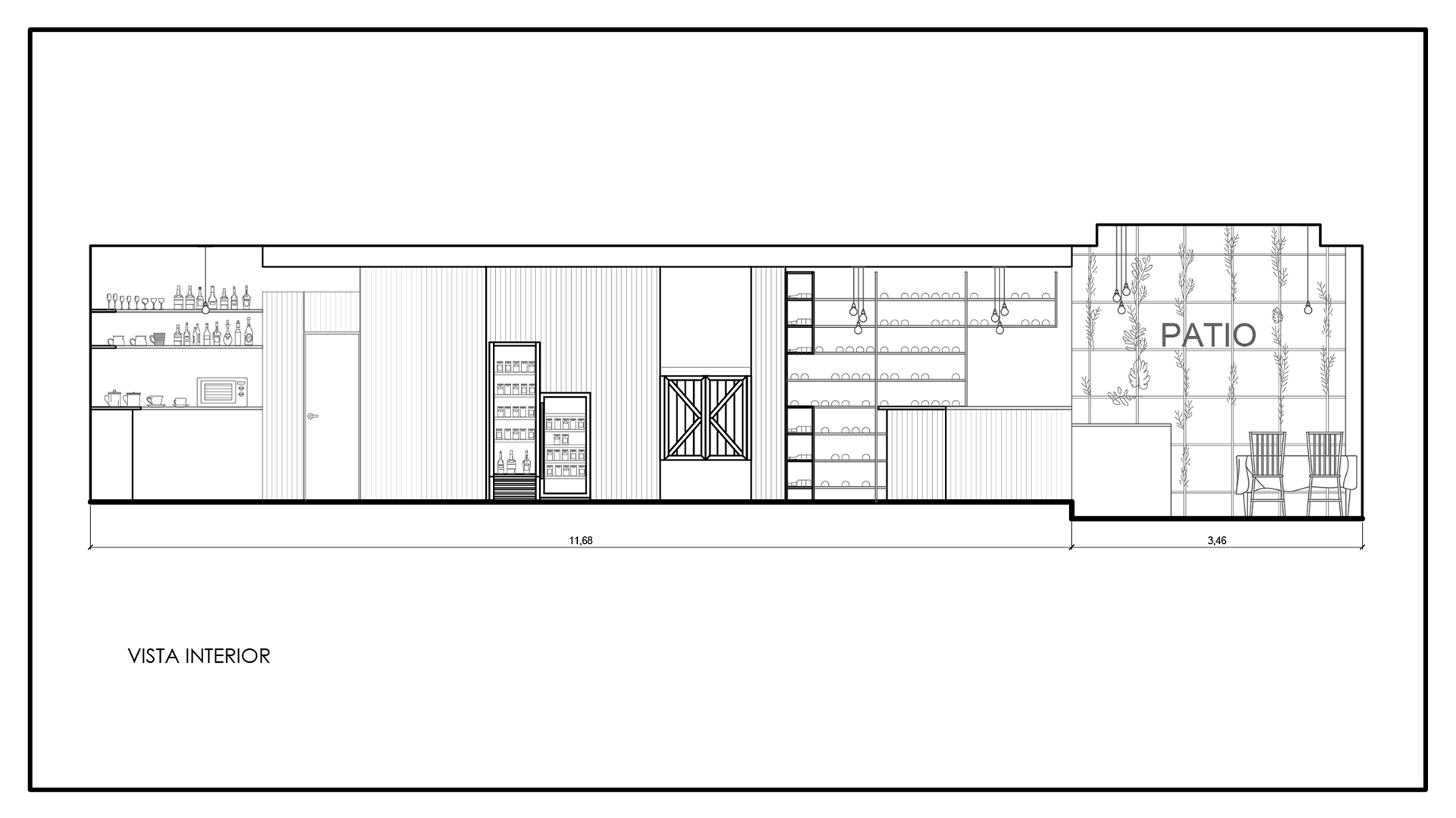
El acceso se define por una barra curvada de recepción que marca la identidad del proyecto, mientras que el salón principal integra una barra de tragos como pieza funcional y escultórica.
El sector exterior se organiza en áreas VIP y públicas, ambas orientadas a potenciar las visuales hacia el río y la experiencia al aire libre.
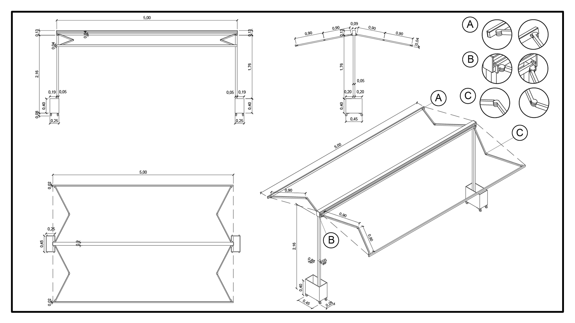
El techo canadiense se presenta como un gesto arquitectónico distintivo, aportando carácter y consolidando una propuesta espacial elegante y memorable.

Servicios

Proyectos • Dirección de Obra • Ejecución de Obra • Gestión de Compras

Proyecto
Patio Madero
Locación:
Puerto Madero, Ciudad de Buenos Aires, Argentina.
Propuesta
Diseño Integral y Local Comercial
Tamaño
230 m²