CASA NOVA

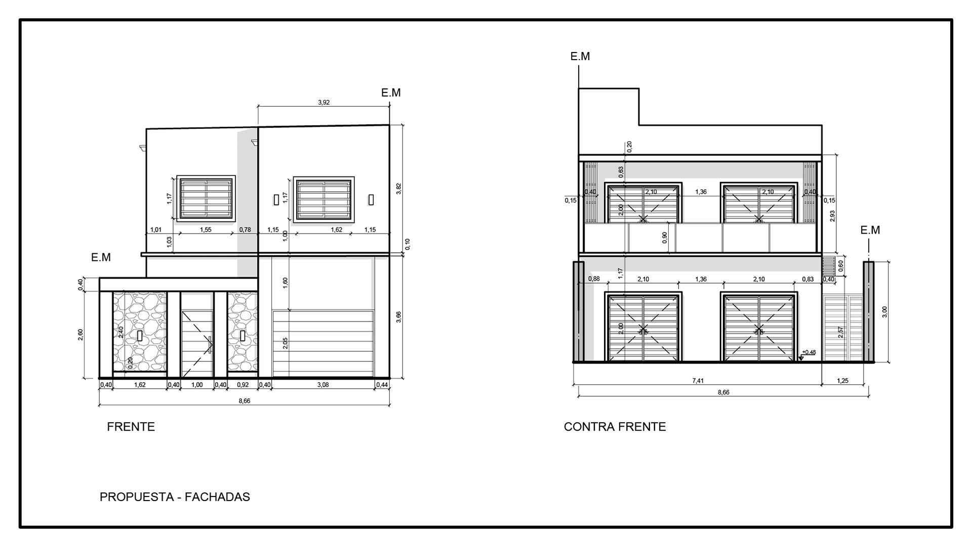
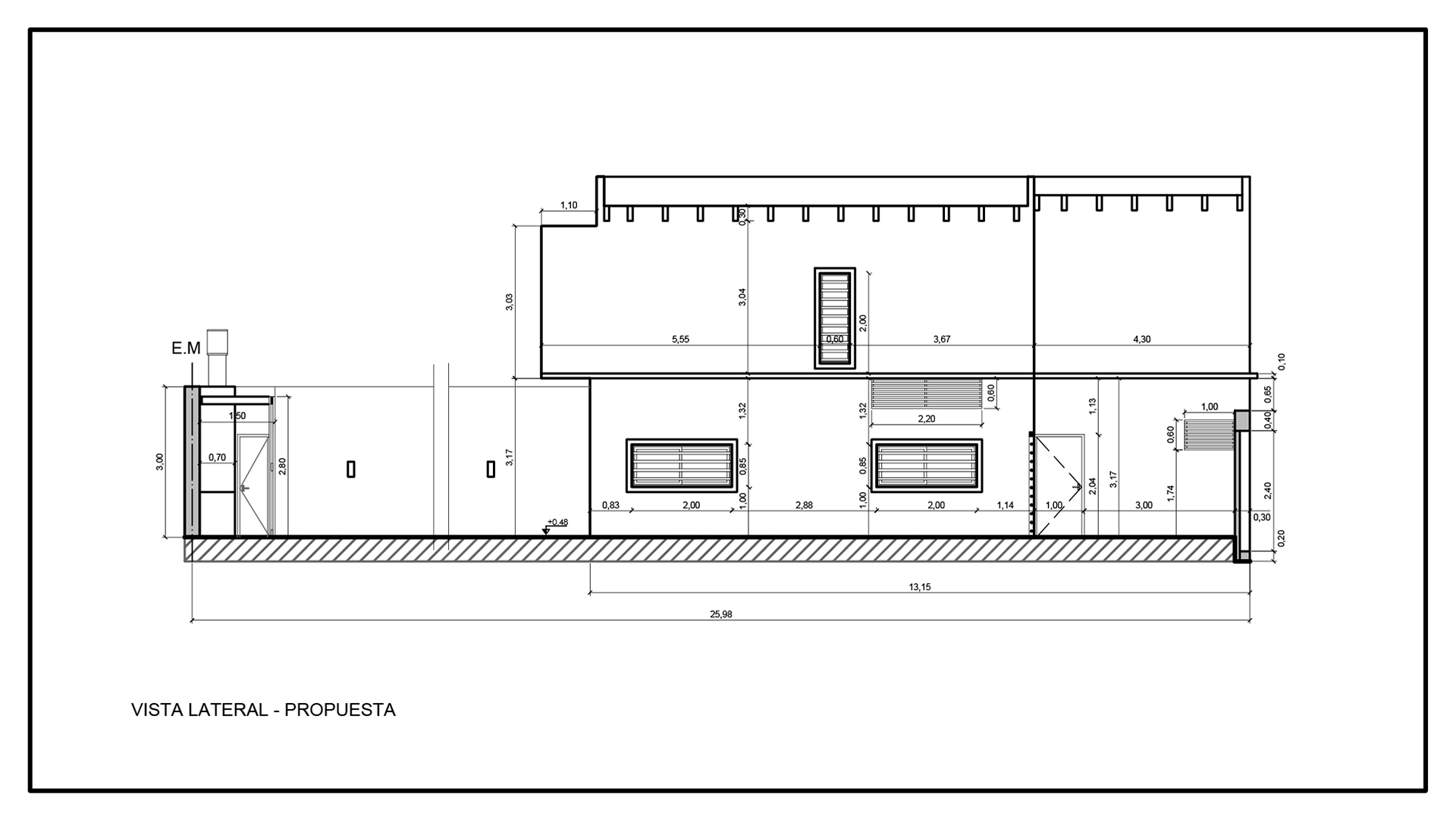
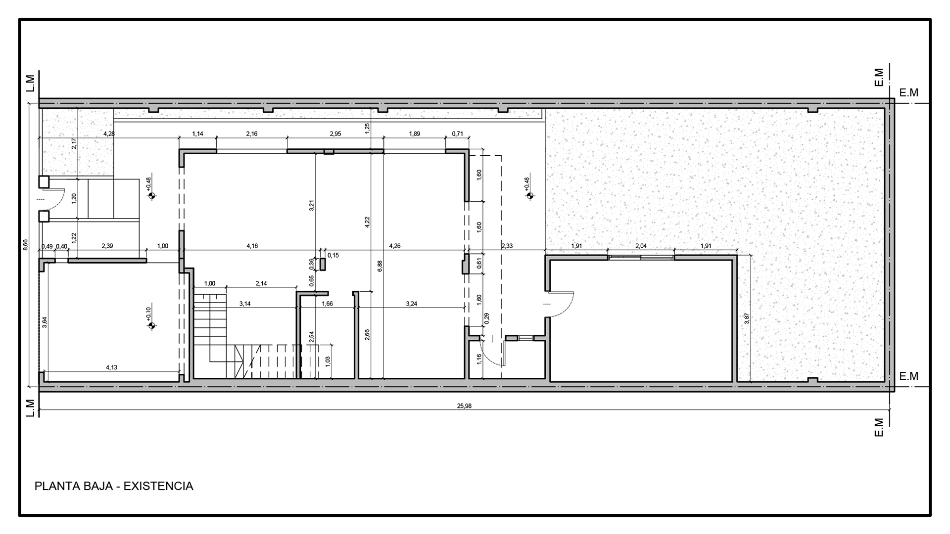
Vivienda de dos plantas pensada desde la funcionalidad y la forma de habitar los espacios, organizada alrededor de un núcleo central que ordena la circulación y estructura toda la casa.
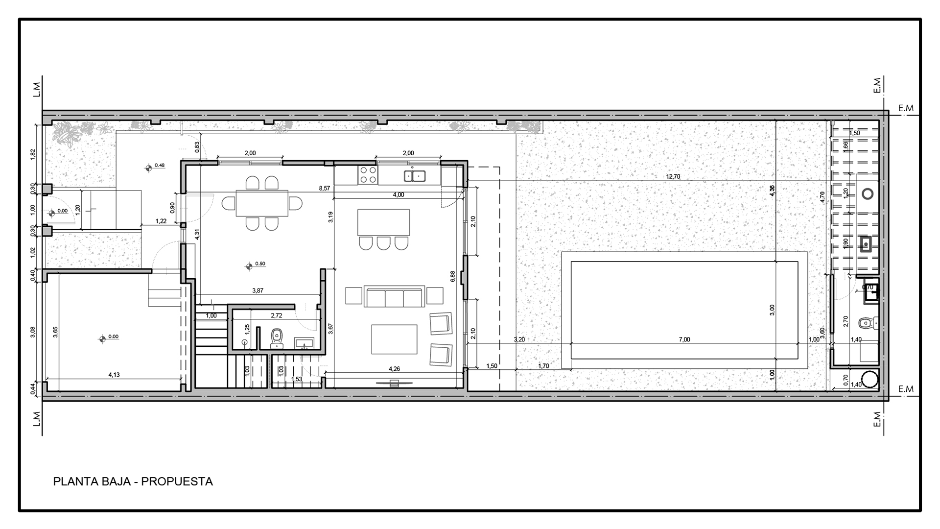
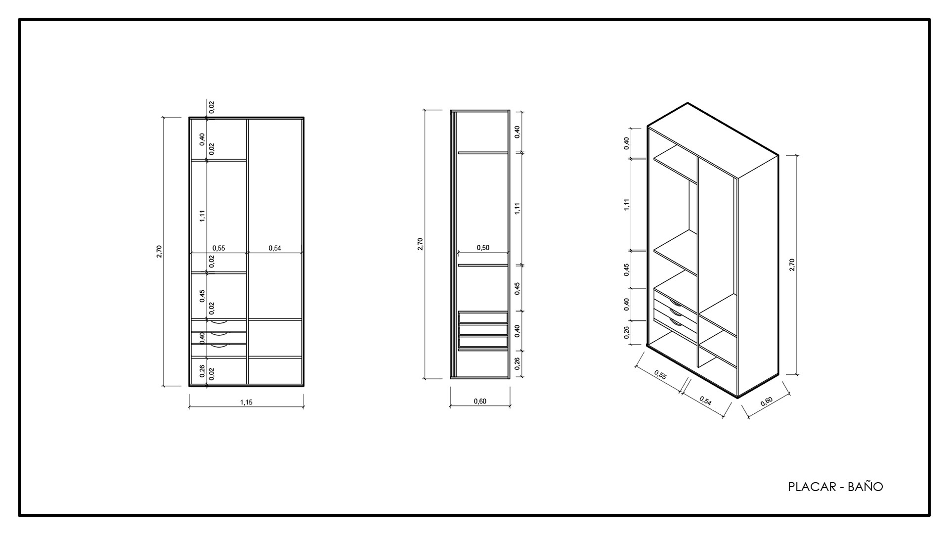
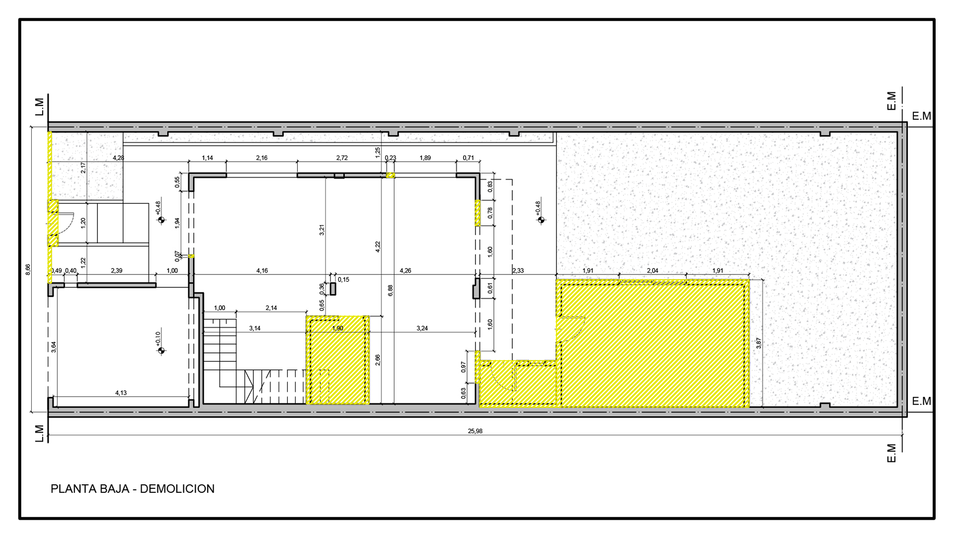
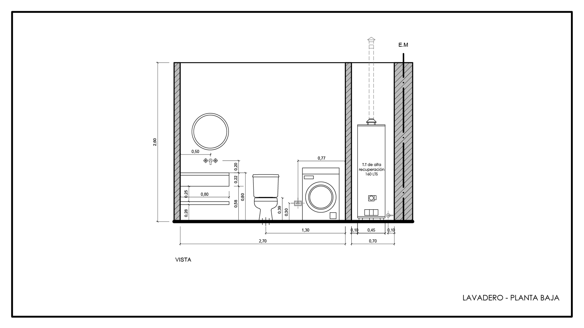
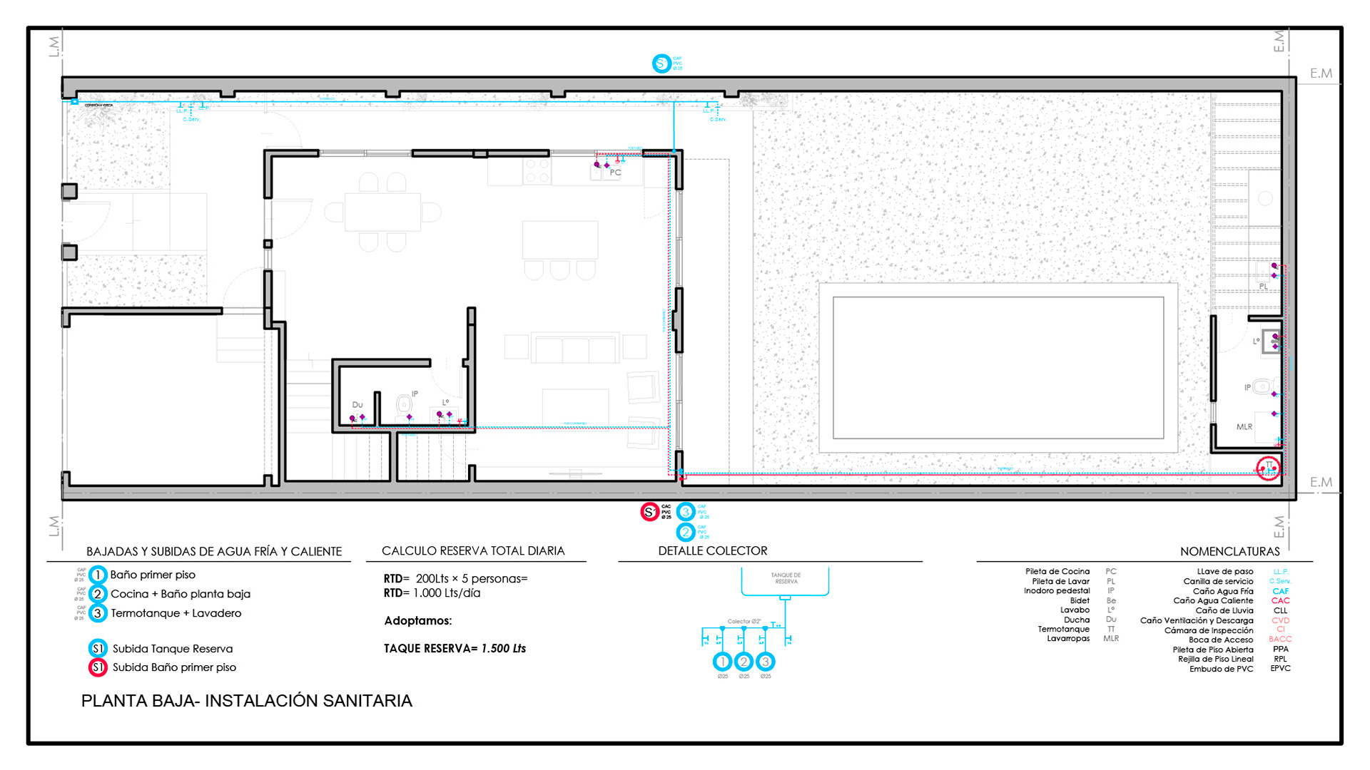
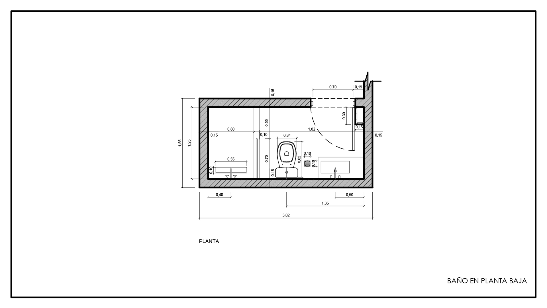
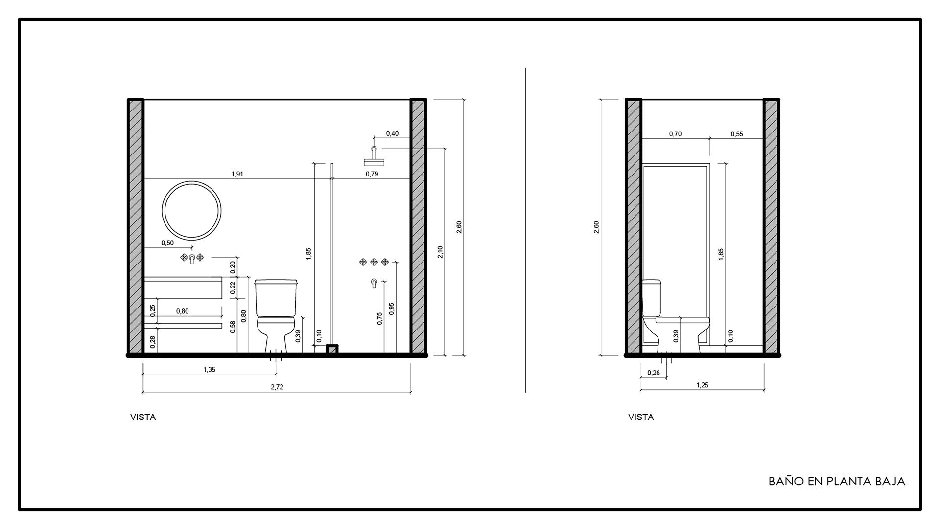
En planta baja, el corazón de la vivienda es un baño completo ubicado estratégicamente como núcleo de servicio. Este volumen central permite optimizar los espacios e incorporar una despensa oculta bajo la escalera.
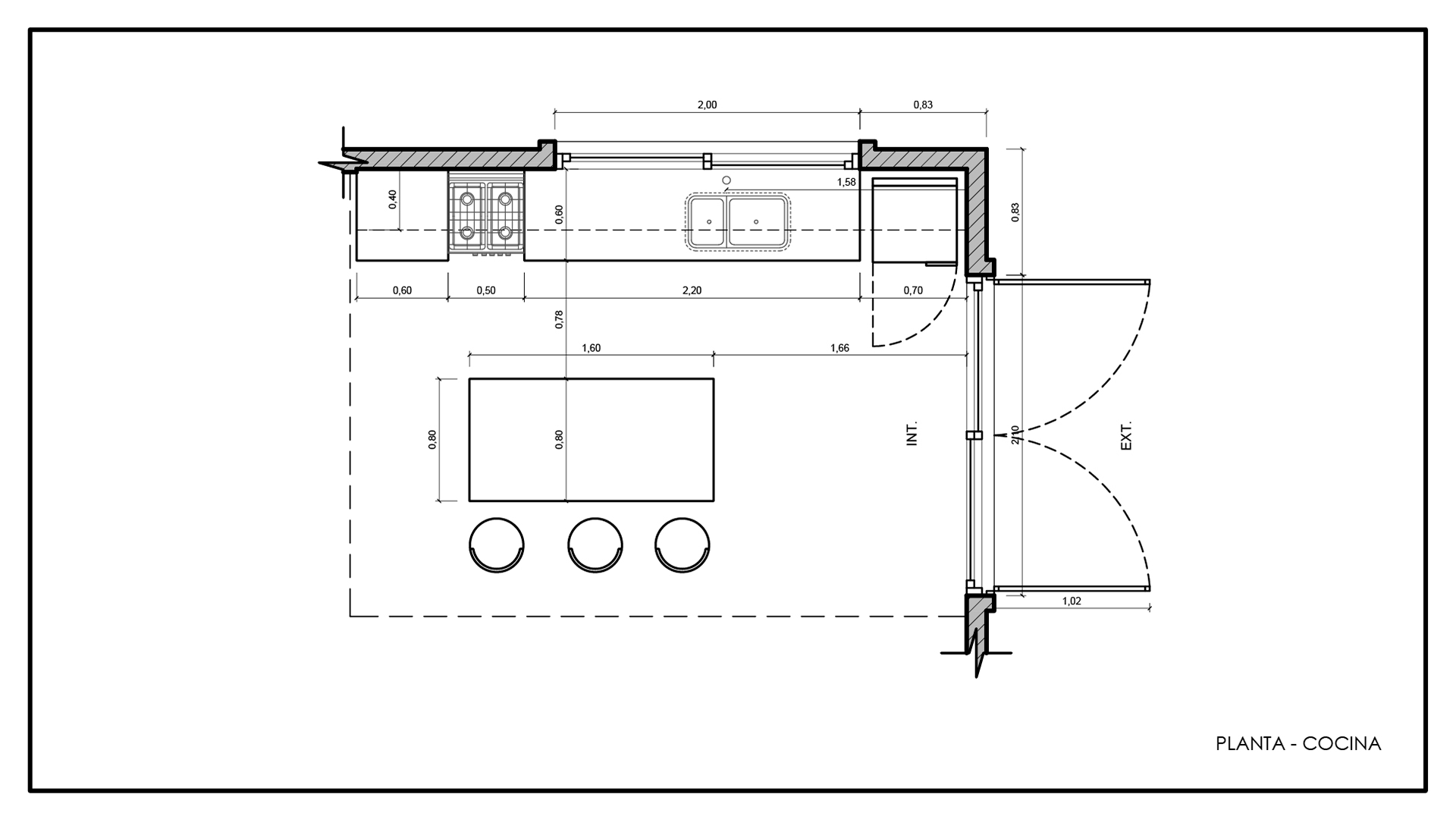
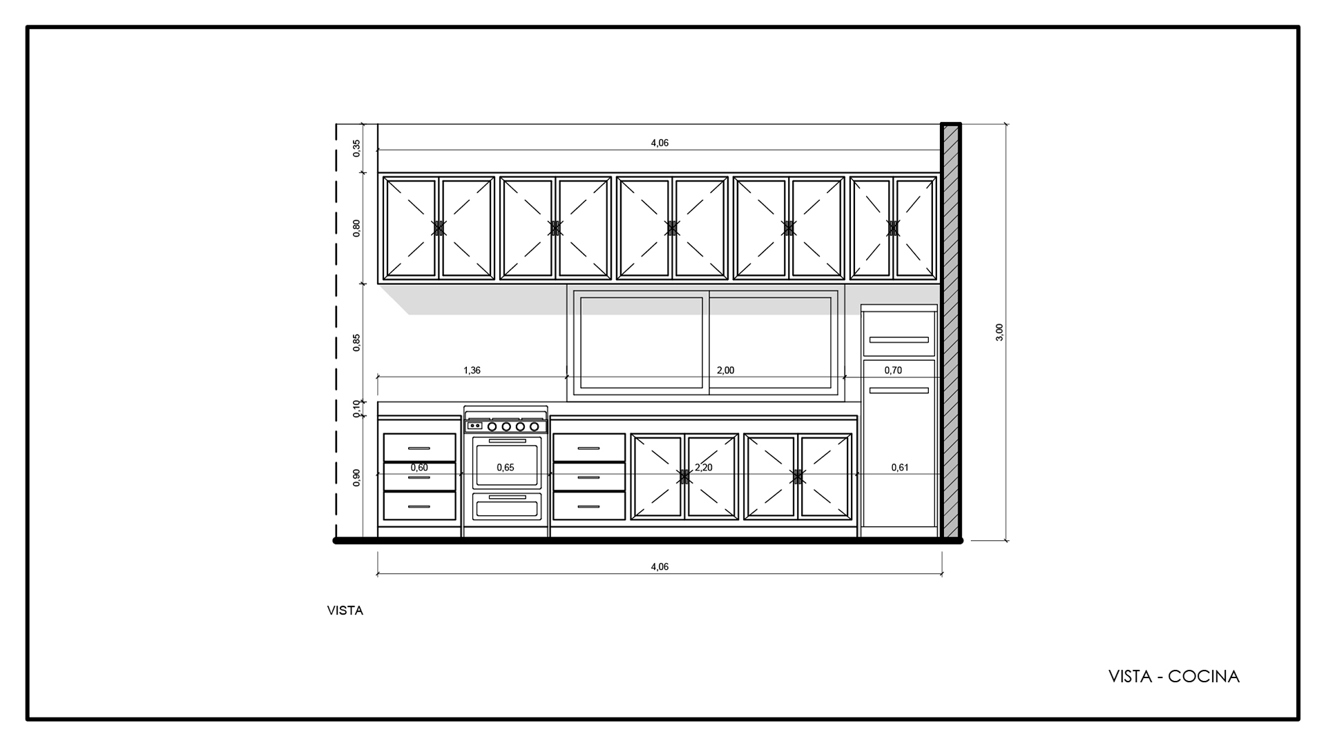
El área social se desarrolla en un gran ambiente integrado de cocina, living y comedor, amplio y luminoso, donde la cocina se proyecta como protagonista de la vida cotidiana.
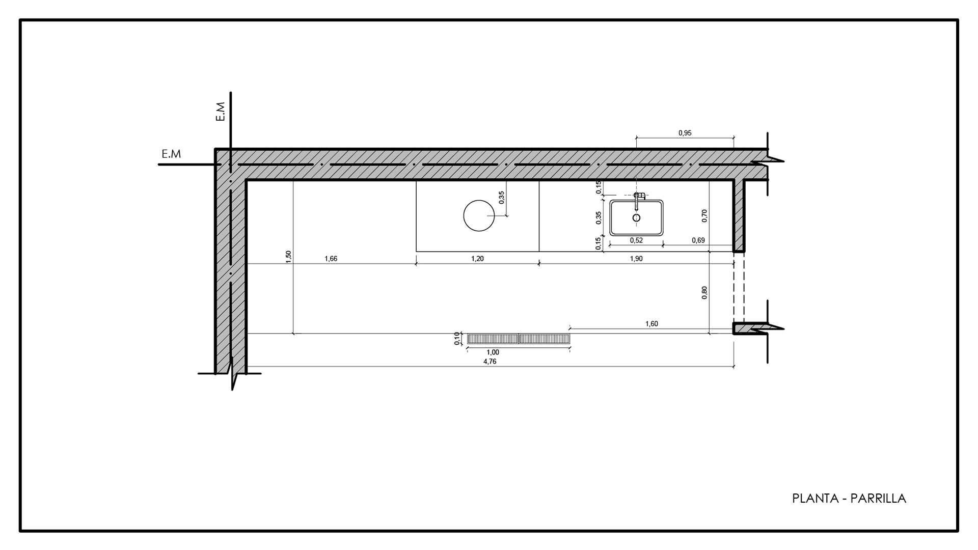
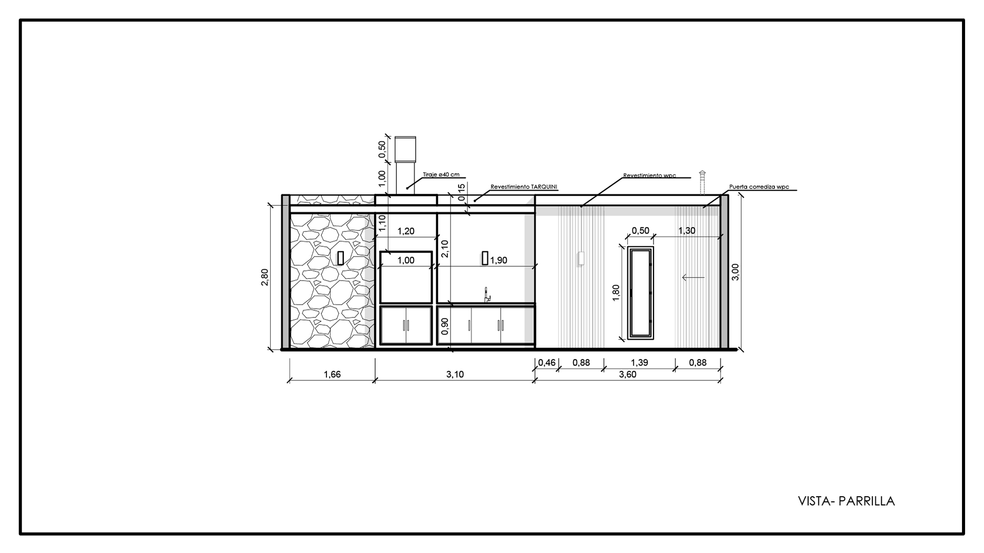
Hacia el fondo del terreno, el proyecto se abre al jardín con la piscina como punto central, acompañada por una parrilla y una pérgola semicubierta pensada para el encuentro y el descanso. Un corredor lateral permite acceder directamente al exterior sin atravesar la vivienda.
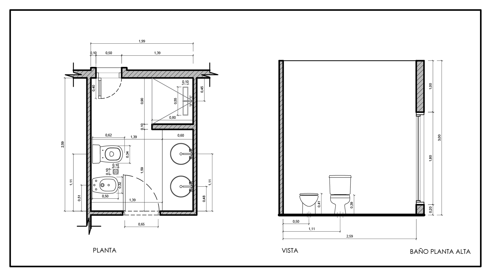
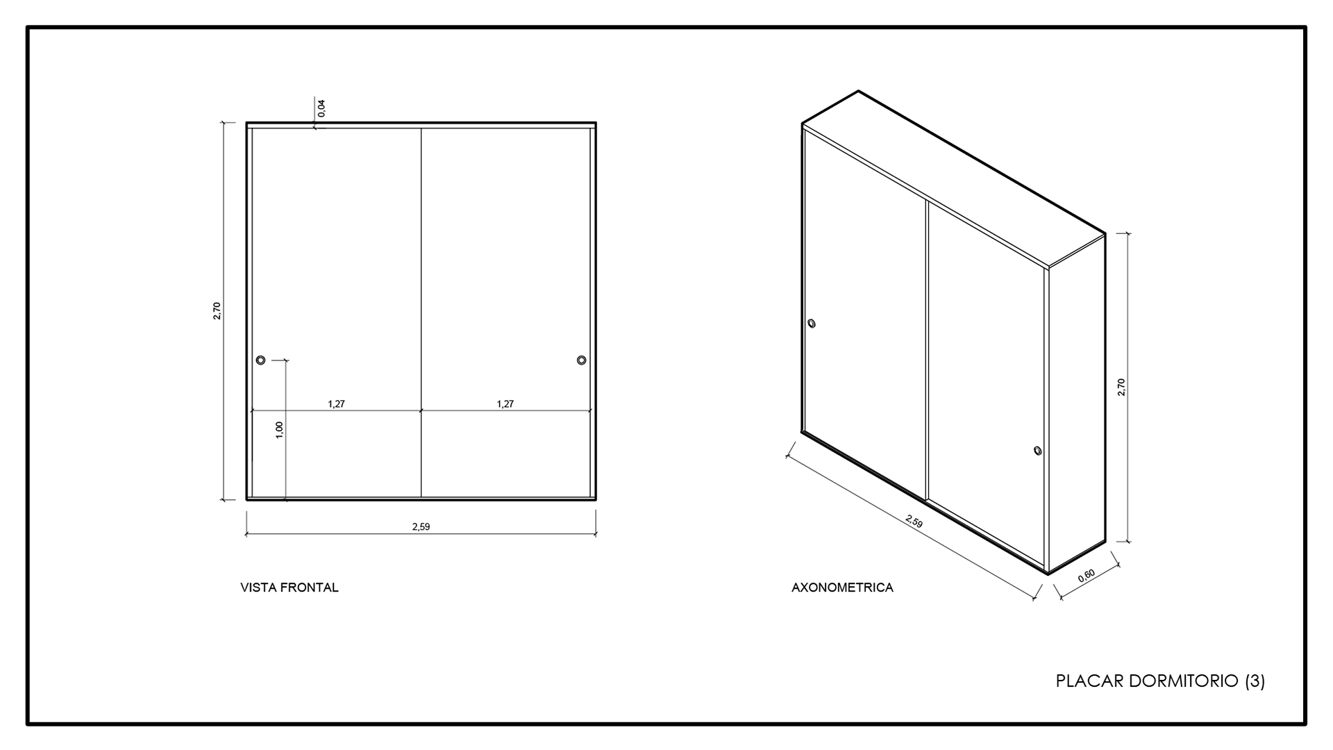
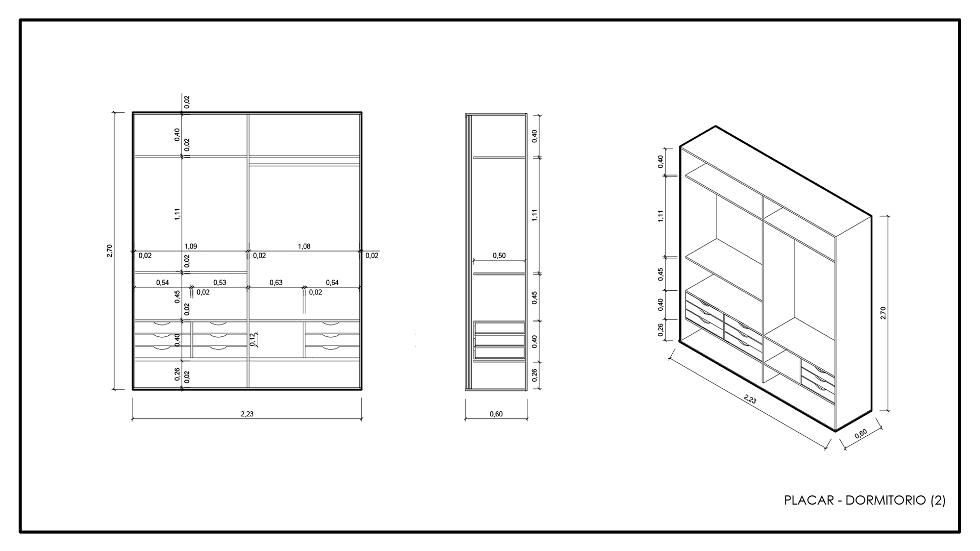
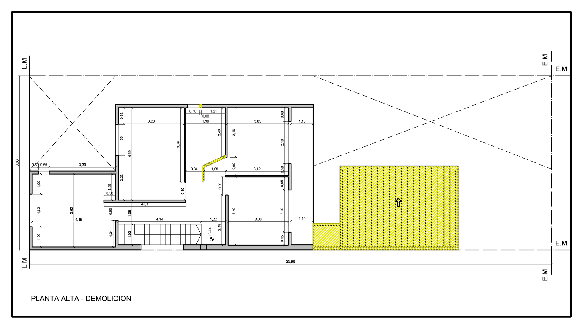
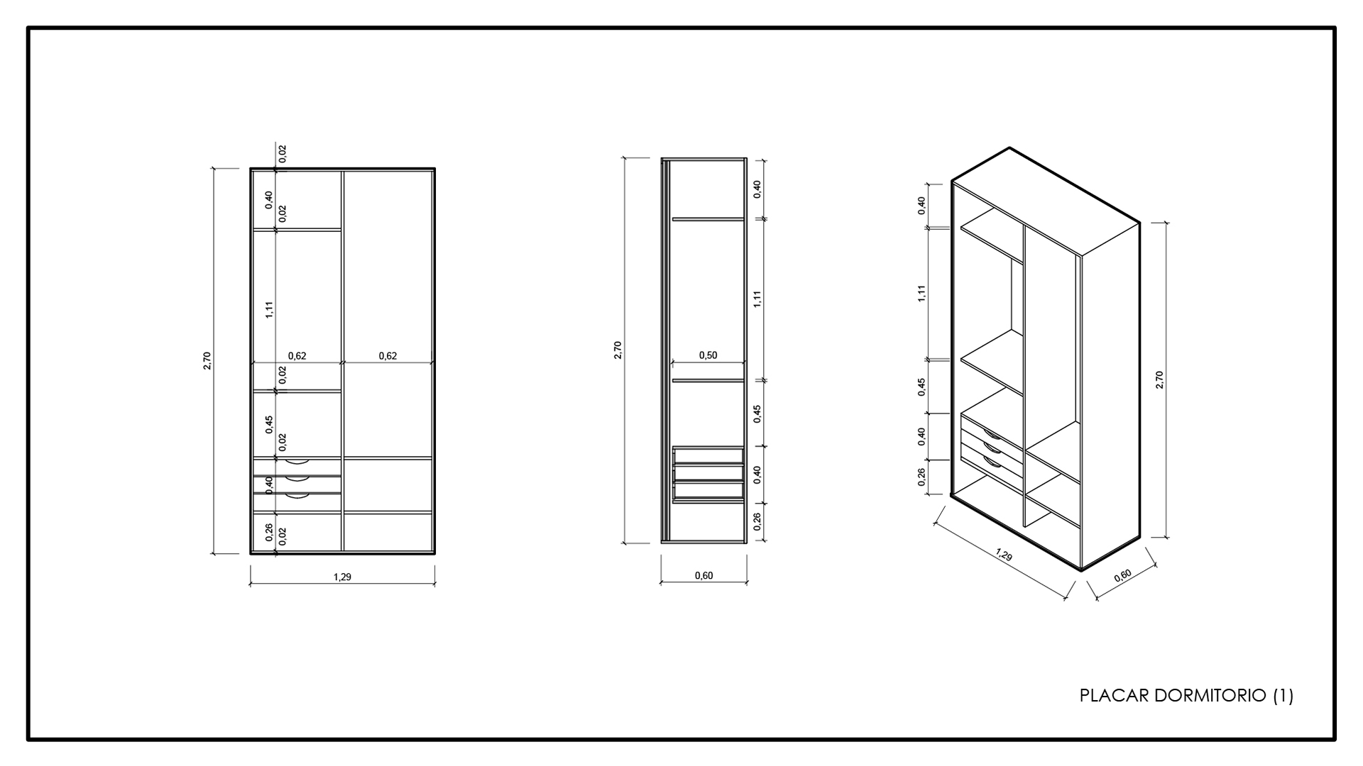
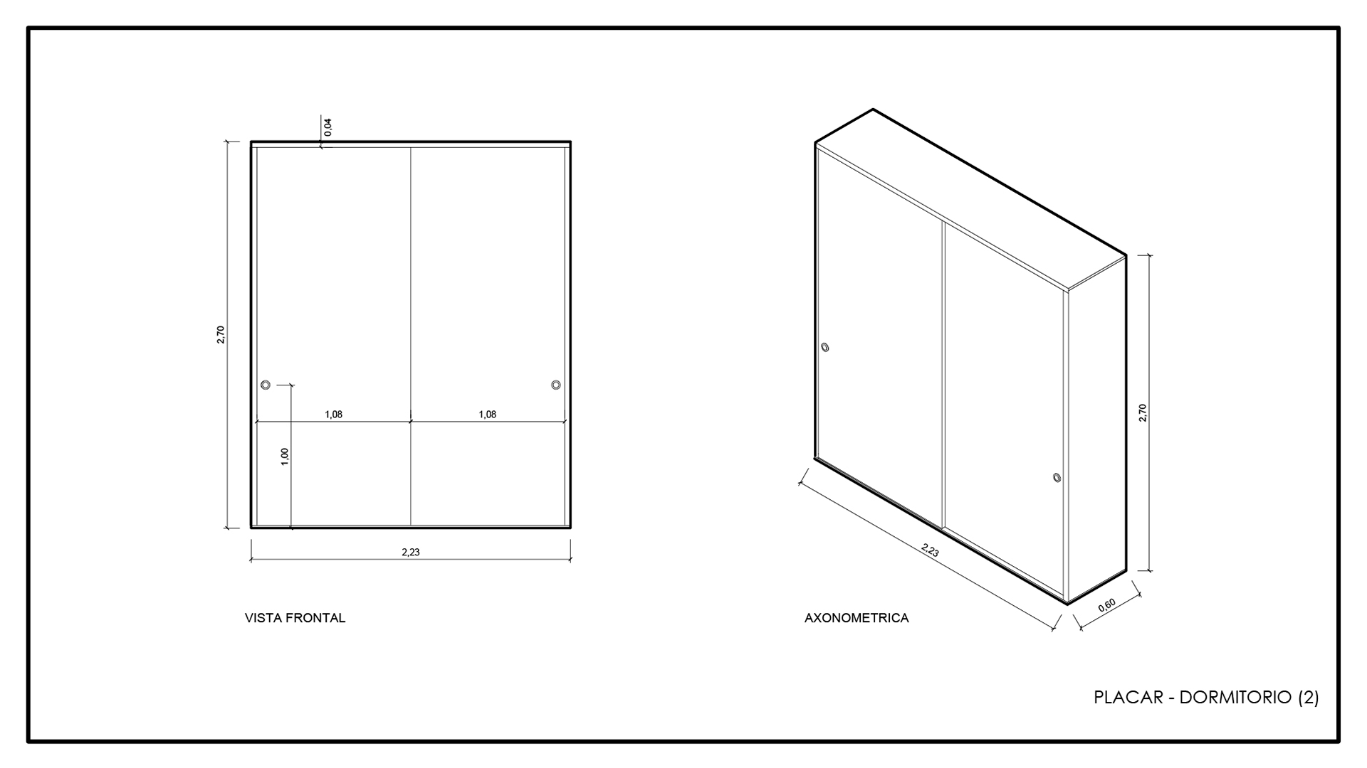
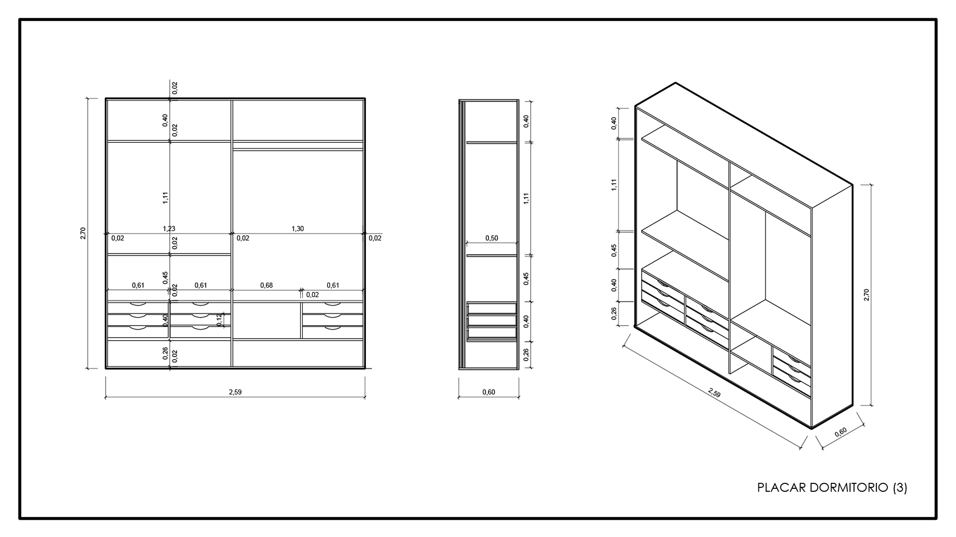
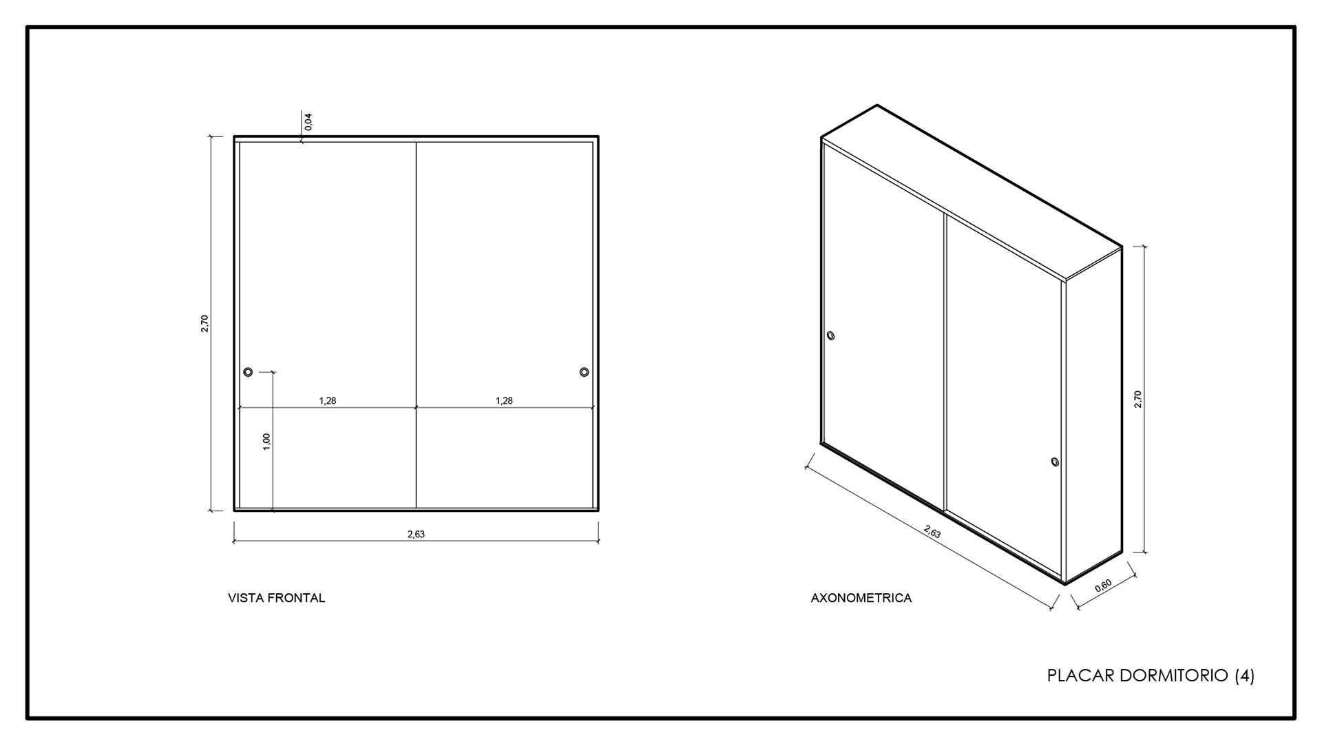
En planta alta se desarrollan cuatro habitaciones con balconeo, organizadas alrededor de un baño común que resuelve el uso privado de la planta.
El resultado es una vivienda que equilibra funcionalidad, integración espacial y conexión con el exterior, pensada para acompañar las distintas dinámicas de quienes la habitan.

Servicios

Proyectos • Dirección de Obra • Ejecución de Obra • Gestión de Compras

Proyecto
Casa Nova
Locación:
Casanova, Buenos Aires, Argentina.
Propuesta
Diseño Integral y Vivienda Unifamiliar
Tamaño
220 m²