CASA MORENO

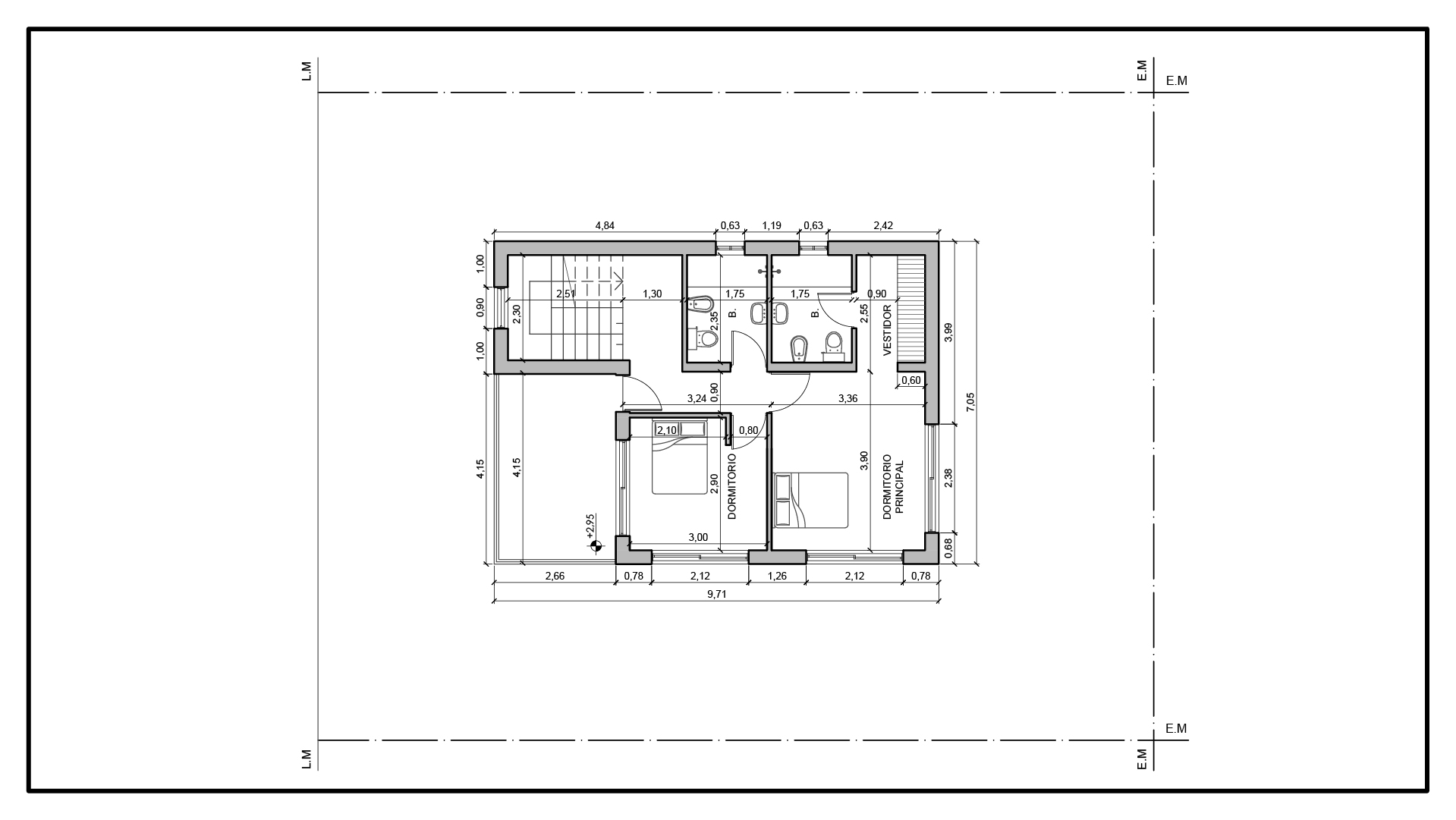
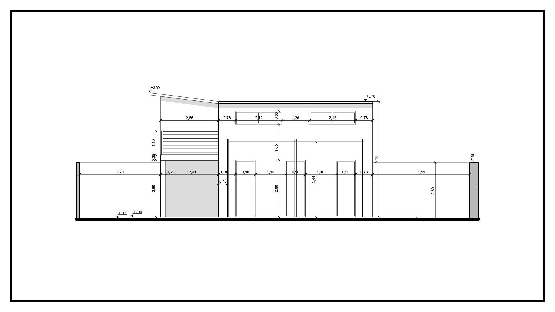
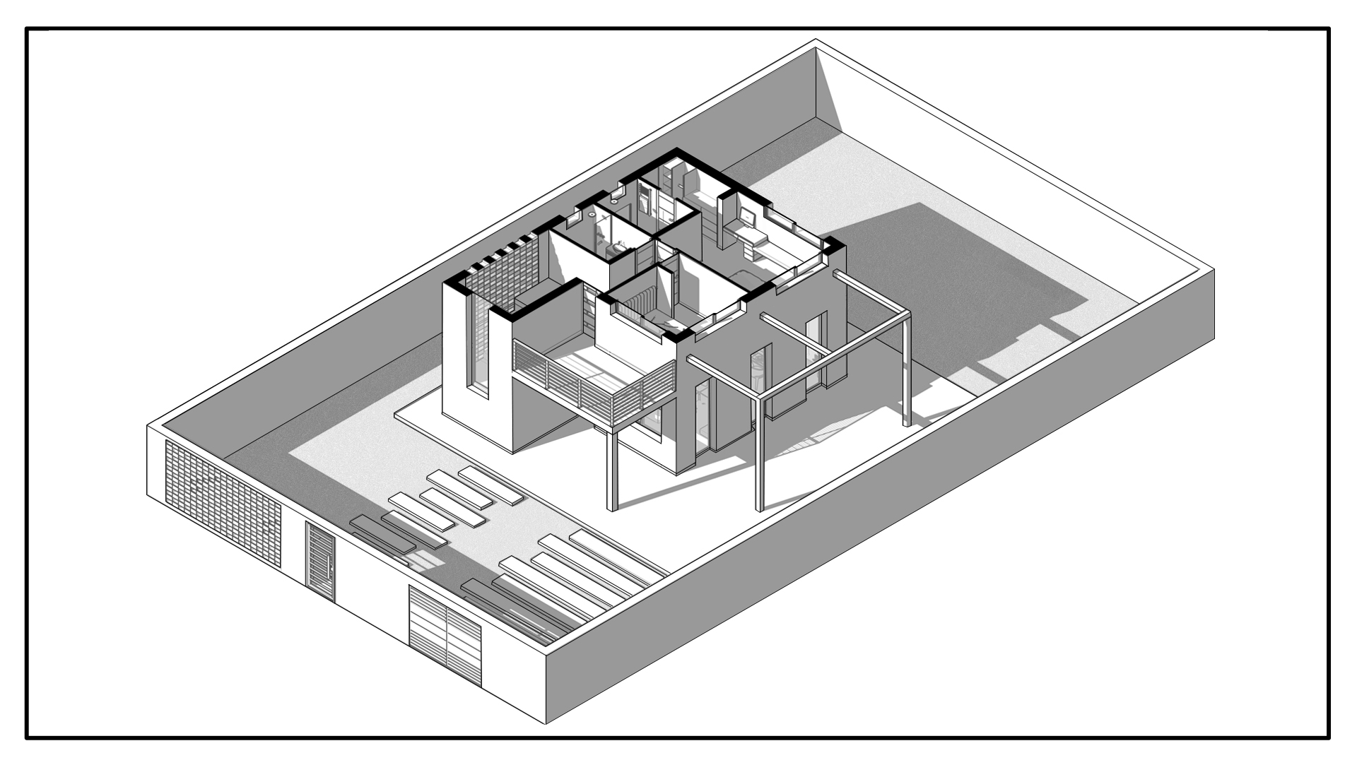
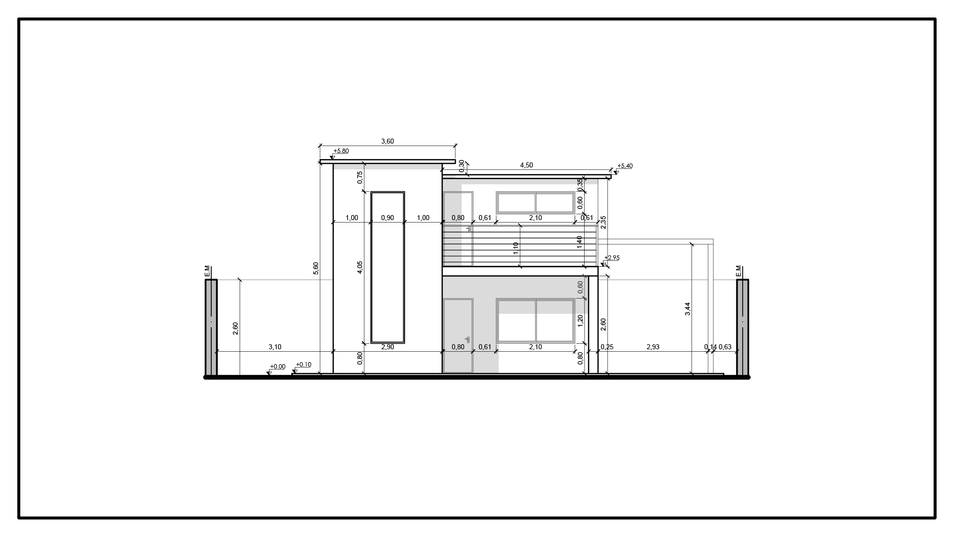
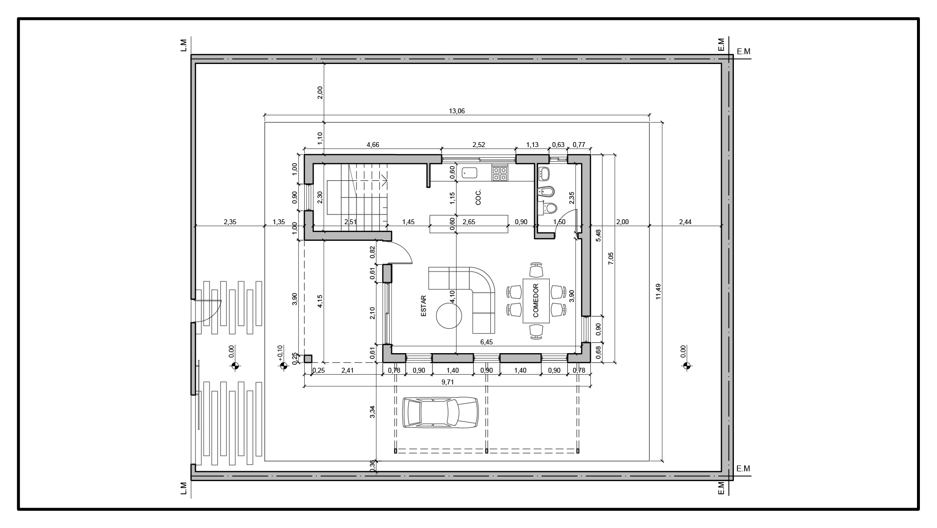
Este proyecto propone una forma de habitar amplia y cálida, con una planta baja integrada donde living, cocina y comedor conviven en un mismo gesto, iluminados por luz natural y acompañados por materiales nobles como hormigón abotonado, madera y pisos símil madera. En la planta alta, la intimidad se refuerza con dos habitaciones y una suite con baño y vestidor como refugio cotidiano. El exterior suma un semicubierto que, pensado para recibir una enredadera, extiende la casa hacia la naturaleza y la hace crecer con el entorno. La vivienda busca equilibrar lo sólido y lo cálido, lo abierto y lo íntimo, invitando a habitarla con calma.

Servicios

Proyectos • Dirección de Obra • Ejecución de Obra • Gestión de Compras

Proyecto
Casa Moreno
Locación:
Moreno, Buenos Aires, Argentina.
Propuesta
Diseño Integral y Vivienda Unifamiliar
Tamaño
210 m²