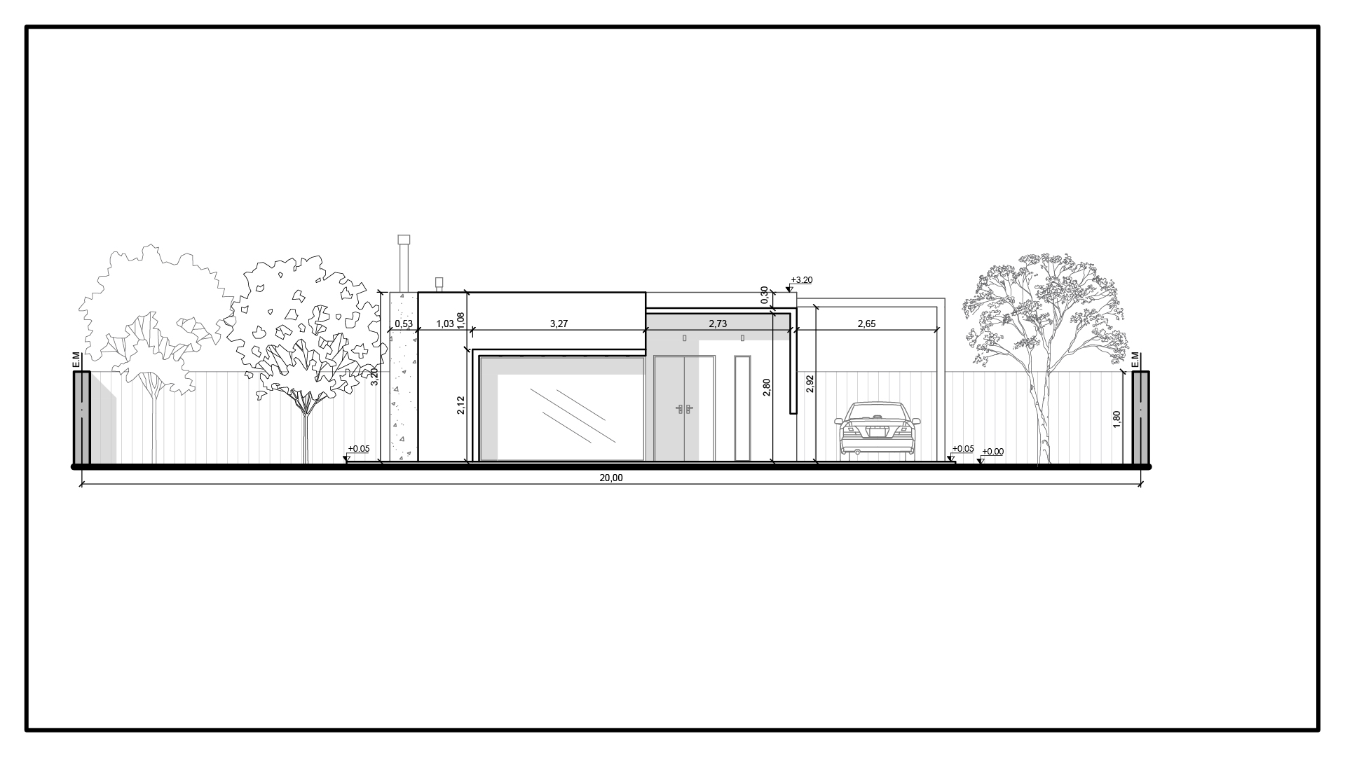
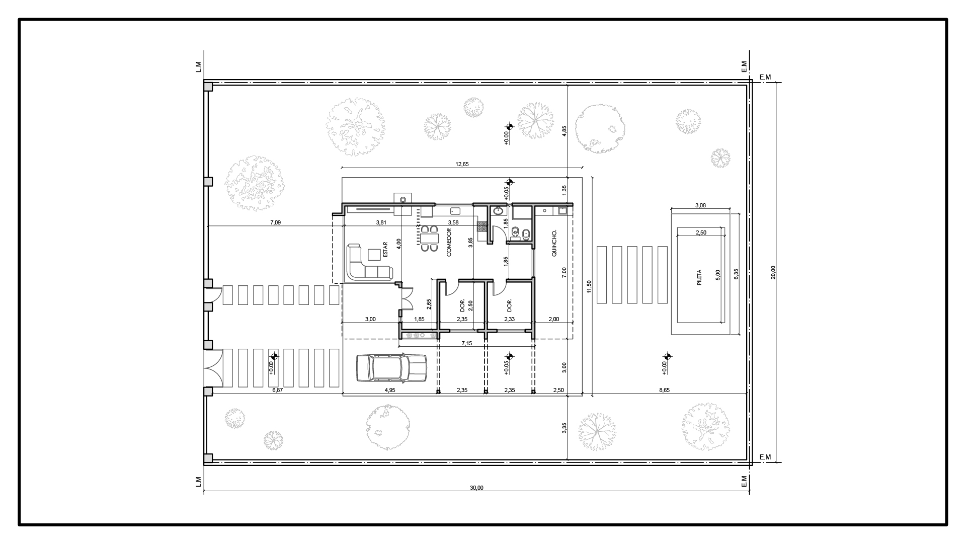
CASA DEL BOSQUE

Casa del Bosque se integra al entorno natural de Mar Azul mediante el uso de hormigón entablonado y madera, creando una atmósfera sobria y cálida. Un gran ventanal conecta el interior con la vegetación del bosque, mientras que los espacios interiores se organizan de manera simple y funcional, priorizando la luz natural y el confort. En el exterior, una pileta a tierra y un quincho semicubierto continúan el lenguaje arquitectónico, favoreciendo la continuidad visual y la integración con el paisaje.

Servicios

Proyectos • Dirección de Obra • Ejecución de Obra • Gestión de Compras

Proyecto
Casa del Bosque
Locación:
Mar Azul, Costa Atlántica, Buenos Aires, Argentina.
Propuesta
Diseño Integral y Vivienda Unifamiliar
Tamaño
170 m²