CAFÉ & CHOCOLATE

Café & Chocolate es un espacio de café de especialidad pensado para convivir con dos ritmos: el dinamismo del take away y la pausa de quienes eligen quedarse.
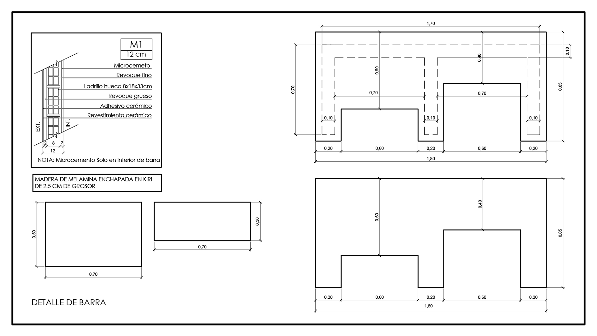
La propuesta arquitectónica pone en valor la materialidad, combinando ladrillo a la vista y microcemento en tonos terracota para crear una atmósfera cálida y artesanal.
La barra principal se convierte en el eje del proyecto, incorporando una “pecera” que exhibe procesos y acerca al cliente al oficio del barista.
El área de estar, resuelta con barras y banquetas, acompaña la experiencia desde una lógica simple, funcional y contemporánea, invitando a detenerse y disfrutar del café.

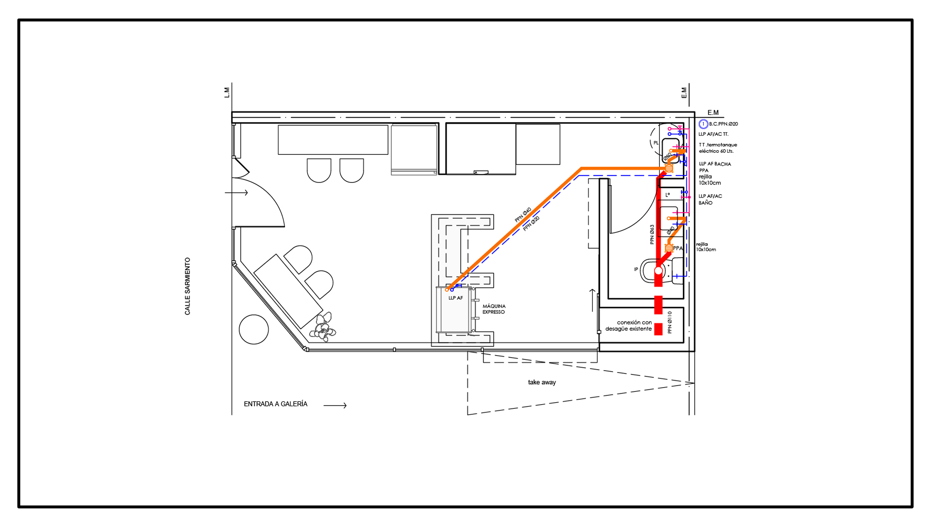
Servicios

Proyectos • Dirección de Obra • Ejecución de Obra • Gestión de Compras

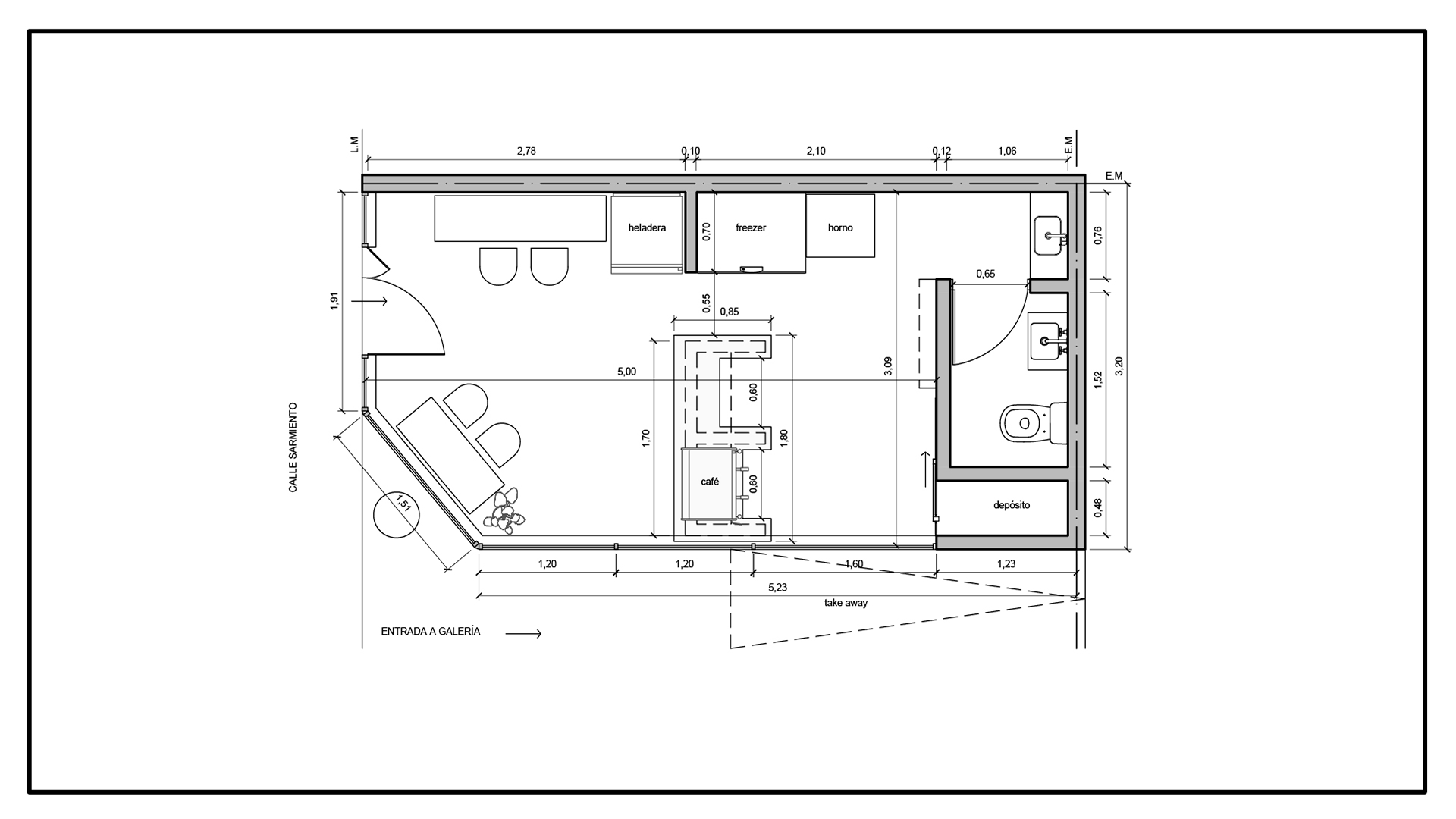
Proyecto
Café & Chocolate
Locación:
Microcentro, Ciudad de Buenos Aires, Argentina.
Propuesta
Diseño Integral y Local Comercial
Tamaño
18 m²