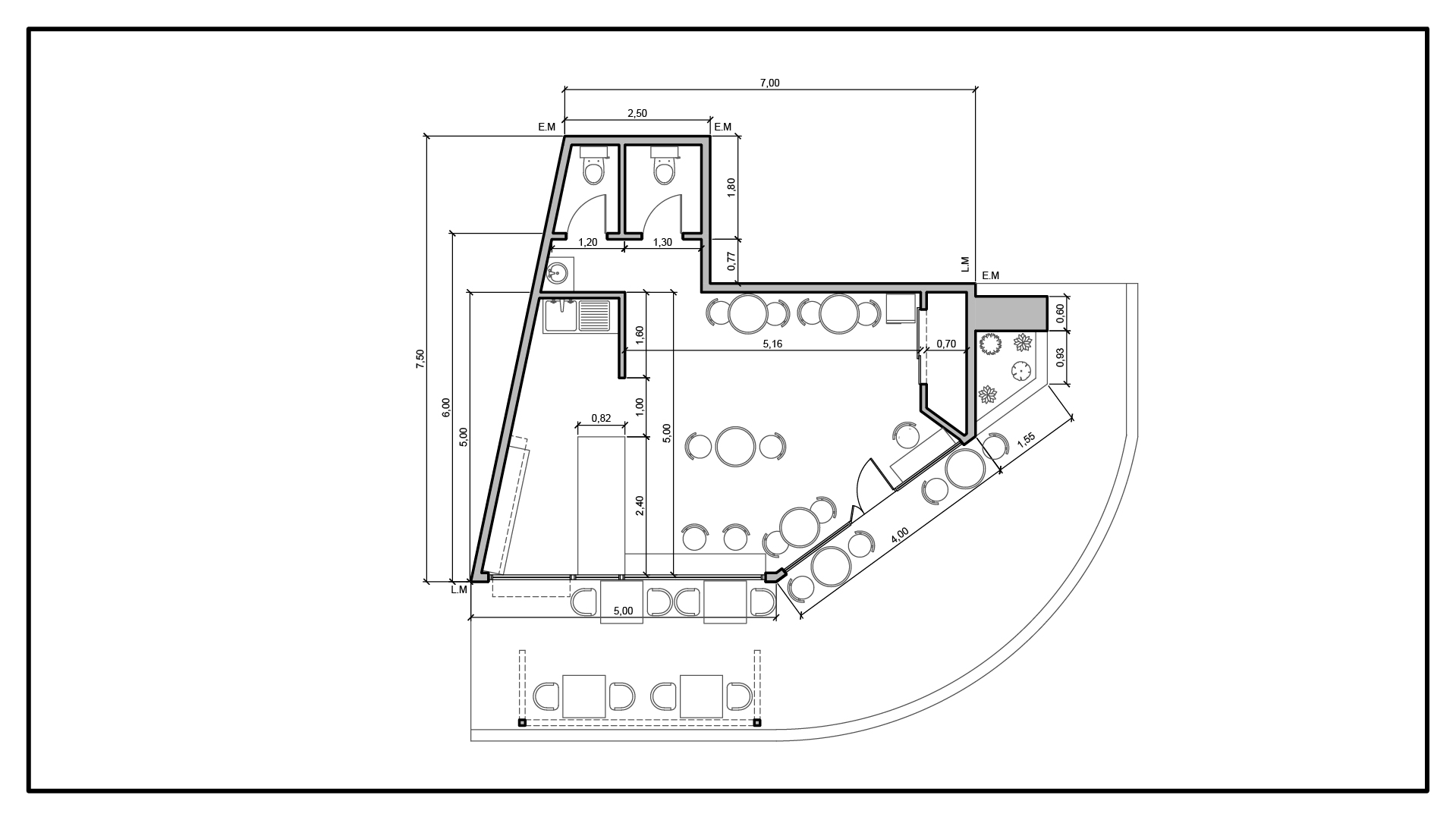
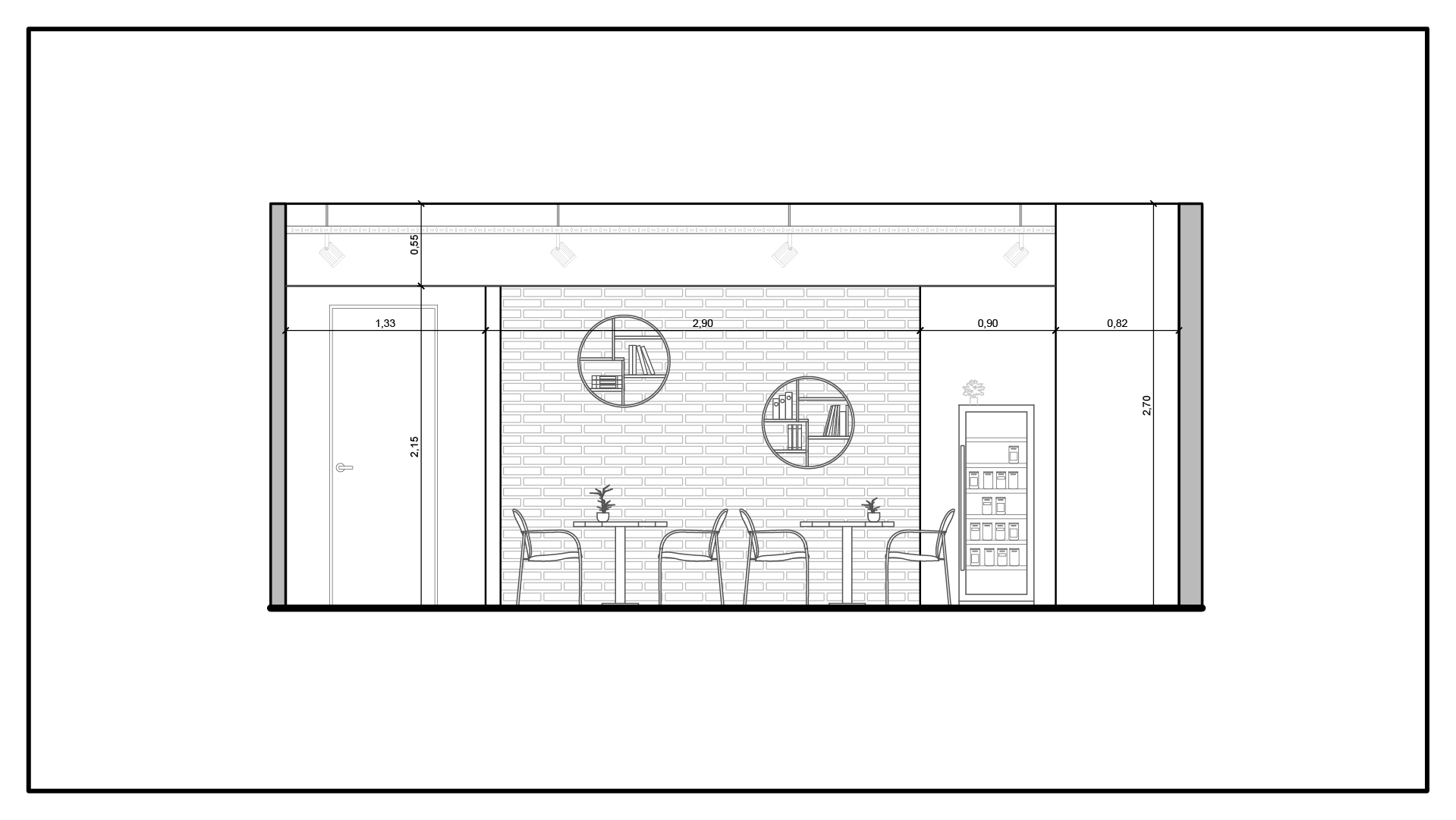
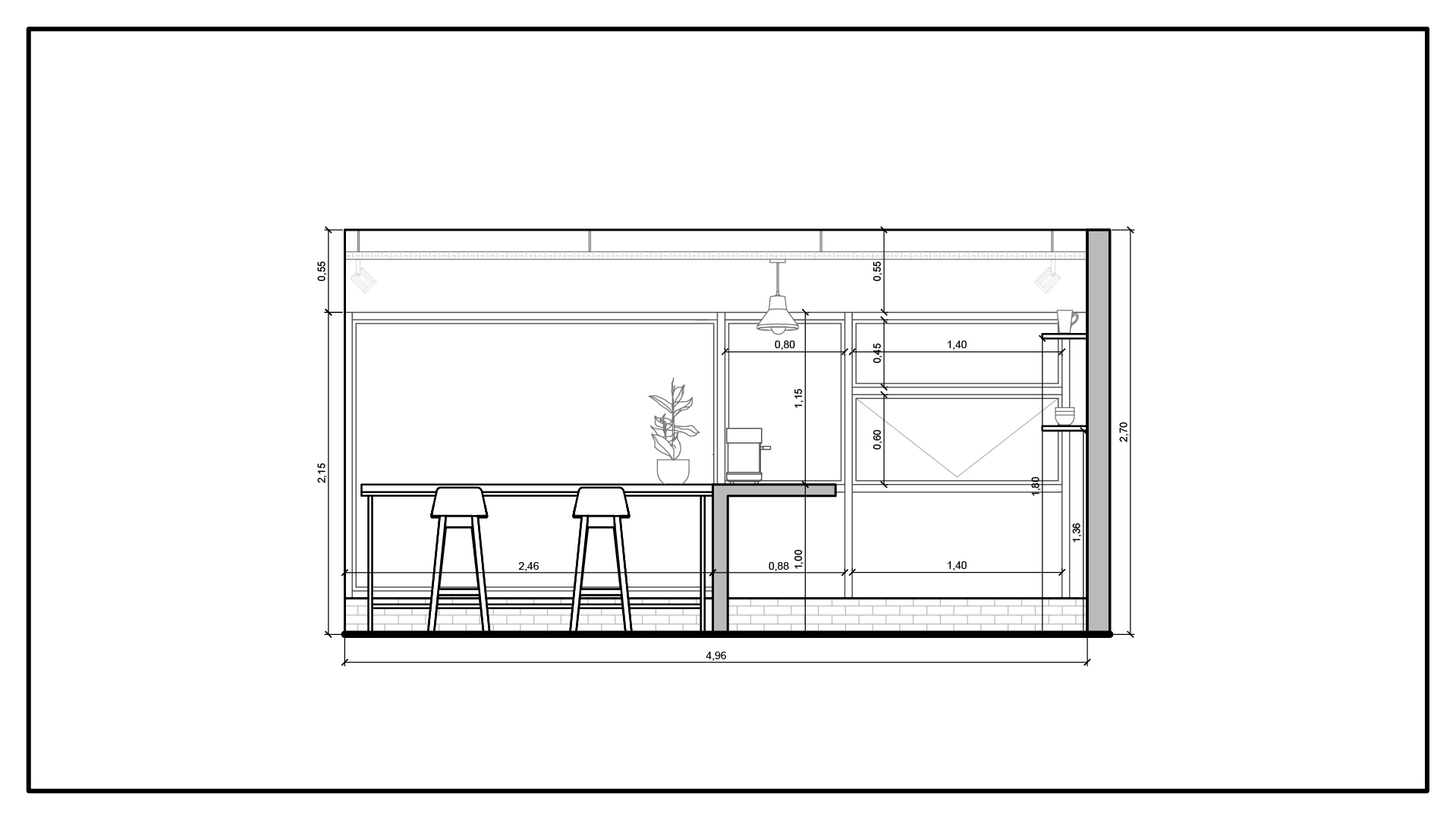
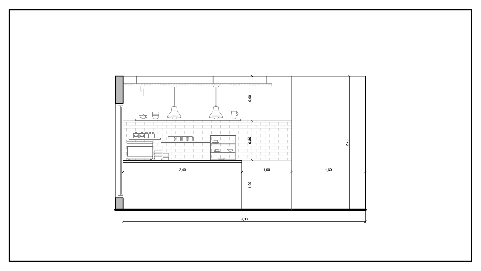
CAFÉ BORDONA

En este proyecto, el desafío fue otorgarle identidad al espacio y crear ambientes cálidos y contenedores. Ubicado en Caballito, a pocos metros de Parque Centenario, fue diseñado para dos músicos amantes del jazz que buscaban un lugar donde disfrutar buen café, música e historias. El nombre “Bordona”, inspirado en el componente del redoblante, guía un branding con personalidad propia, basado en una paleta de grises, madera y negro, que refuerza su carácter íntimo y musical.

Servicios

Proyectos • Dirección de Obra • Ejecución de Obra • Gestión de Compras

Proyecto
Café Bordona
Locación:
Caballito, Ciudad de Buenos Aires, Argentina.
Propuesta
Diseño Comercial
Tamaño
60 m²