CAFÉ AREMI

Café Aremi es un local de café de especialidad donde el diseño busca transmitir calidez e identidad a través de una experiencia sensorial cuidada.
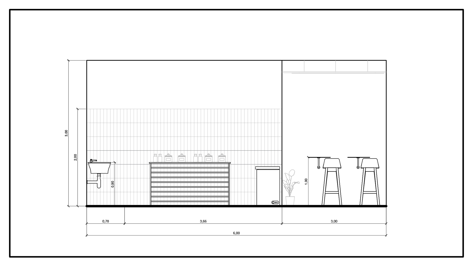
La materialidad define el espacio, con microcemento color camel como base y acentos en verde oliva que aportan equilibrio y frescura.
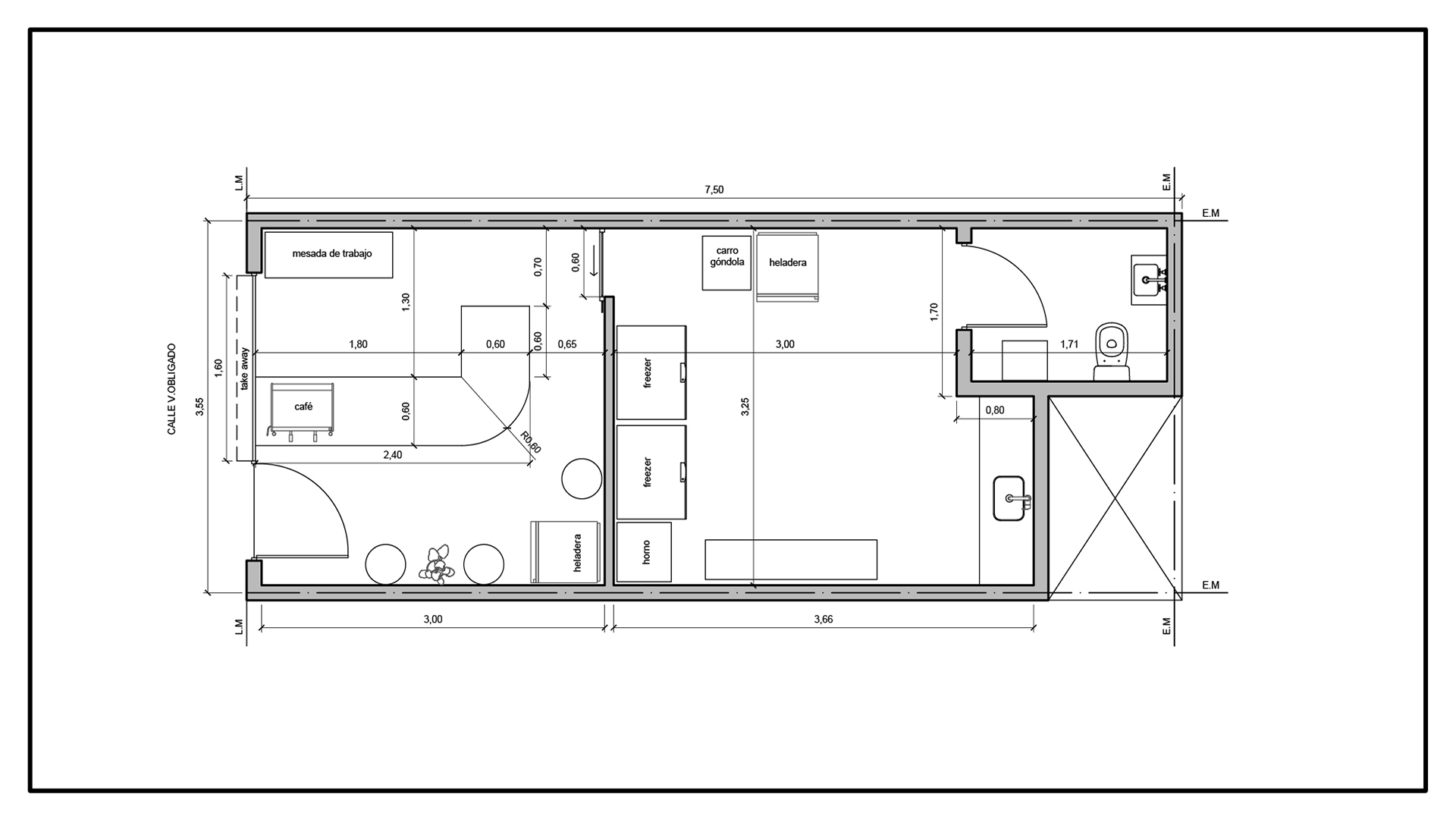
La barra curvada se convierte en el elemento central del proyecto, organizando la circulación y generando un gesto arquitectónico distintivo.
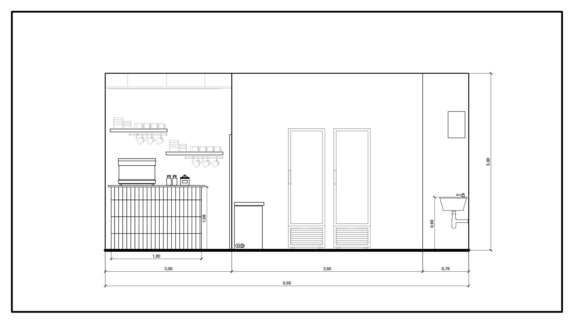
La cocina se resuelve de forma funcional y separada, aportando orden visual y potenciando la amplitud del ambiente.

Servicios

Proyectos • Dirección de Obra • Ejecución de Obra • Gestión de Compras

Proyecto
Café Aremi
Locación:
Belgrano, Ciudad de Buenos Aires, Argentina.
Propuesta
Diseño Integral y Local Comercial
Tamaño
25 m²