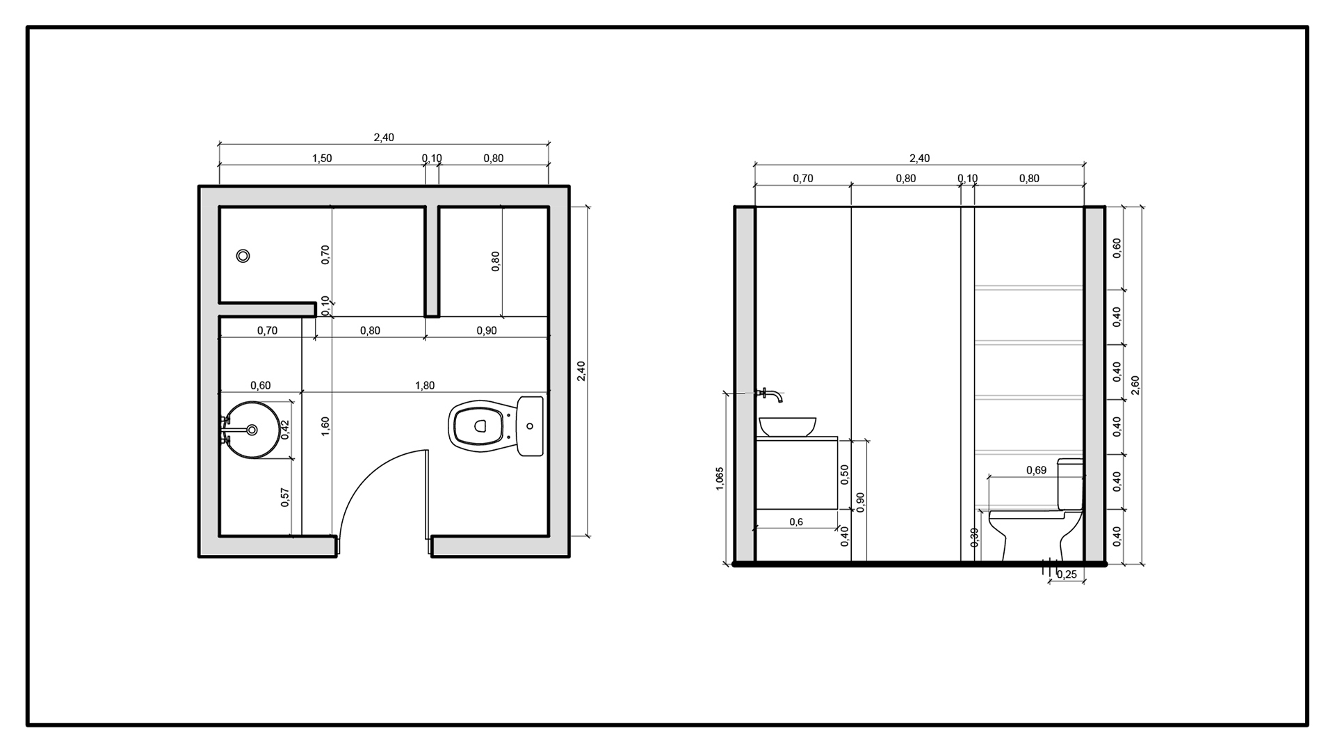
BAÑO LINIERS

Baño diseñado con una impronta minimalista, donde las líneas limpias y la pureza de los materiales generan una estética serena y contemporánea.
Los porcelanatos envuelven el espacio con superficies continuas que aportan amplitud y sofisticación.
La bacha de mármol con mueble de guardado integrado se presenta como el elemento protagonista, sumando textura y carácter al conjunto.
La ducha incorpora un nicho funcional que mantiene el orden y refuerza la limpieza visual del proyecto, dando como resultado un ambiente equilibrado y elegante.

Servicios

Proyectos • Dirección de Obra • Ejecución de Obra • Gestión de Compras

Proyecto
Baño Liniers
Locación:
Liniers, Ciudad de Buenos Aires, Argentina.
Propuesta
Diseño Integral de Baño
Tamaño
12 m²