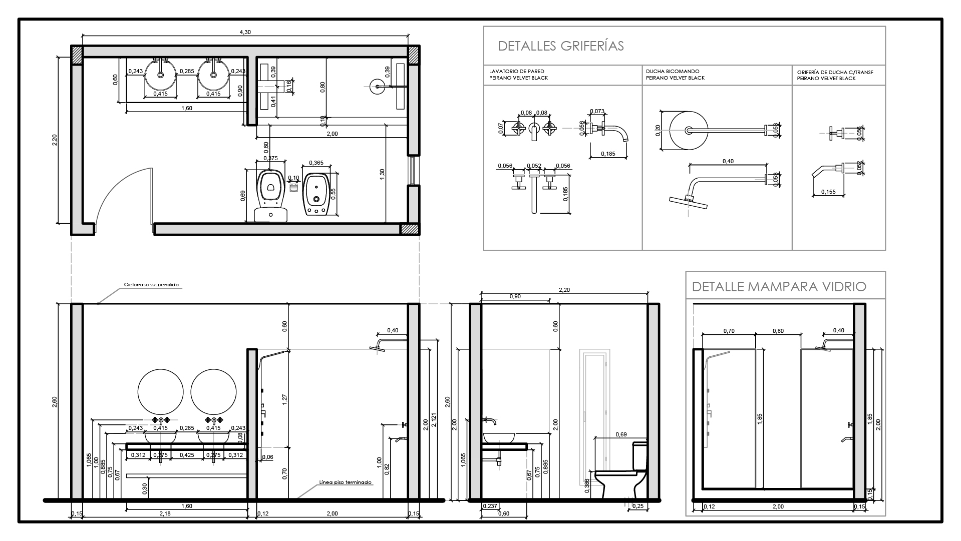
BAÑO EN SUITE

Este baño fue diseñado como un refugio cotidiano, donde la calidez de los porcelanatos marmolados, la luz tenue y los materiales nobles crean una atmósfera serena. La ducha tradicional combinada con ducha escocesa transforma el baño en un ritual sensorial, mientras que la bacha voladiza doble aporta liviandad y funcionalidad. Todo el espacio busca equilibrio y sutileza, priorizando la experiencia antes que el impacto visual, para ofrecer un lugar que no solo se vea bien, sino que se sienta bien.

Servicios

Proyectos • Dirección de Obra • Ejecución de Obra • Gestión de Compras

Proyecto
Baño en Suite
Locación:
Ramos Mejía, Buenos Aires, Argentina.
Propuesta
Diseño Integral
Tamaño
10 m²